$408,784

Listing currency: €349,000

Change currency

Select Currency

Antillean Guilder

Argentina Peso

Aruban Florin

Australian Dollar

Bahamian Dollar

Barbadian Dollar

Belize Dollar

Bermudan Dollar

Bitcoin

Brazil Real

Bulgarian Lev

Canadian Dollar

Cayman Islands Dollar

Chile Peso

China Yuan Renminbi

Columbian Peso

Costa Rican Colón

Czech Republic Koruna

Denmark Krone

Dominican Peso

Euros

Fiji Dollar

Ghanaian Cedi

Honduras Lempira

Hong Kong Dollar

Hungary Forint

Iceland Krona

India Rupee

Indonesia Rupiah

Israel Shekel

Jamaican Dollar

Japan Yen

Korea (South) Won

Lebanese Pound

Malaysia Ringgit

Mexico Peso

Mauritian Rupee

New Zealand Dollar

Nicaraguan Córdoba

Nigerian Naira

Norway Krone

Pakistan Rupee

Panamanian Balboa

Peruvian Sol

Philippine Peso

Poland Zloty

Russia Ruble

Singapore Dollar

South Africa Rand

Sweden Krona

Switzerland Franc

Taiwan New Dollar

Thailand Baht

Trinidad & Tobago Dollar

Turkey Lira

United Arab Emirates Dirham

United Kingdom Pound

Uruguayan Peso

US Dollar

Viet Nam Dong

Qatar Riyal

 

Schortens / Grafschaft, Germany 26419

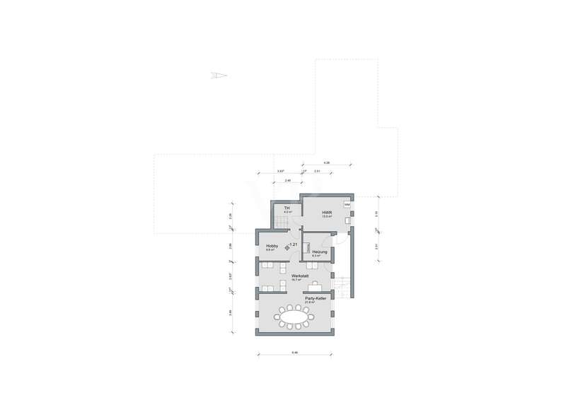
In a quiet residential area of Schortens Grafschaft, this flat-roofed detached house in split-level construction is situated on a plot of approx. 1,287 m². The living space of approx. 143.5 m² is spread over a total of five rooms, up to four of which can be used as bedrooms. The centerpiece is the open-plan living and dining area with fireplace and direct access to the partially covered terrace; the roof with awning was renewed in 2022. The well-kept kitchen with adjoining pantry offers short distances in everyday life. A few steps lead to the upper level with two children's rooms, a study with balcony access and a garden-side bedroom with another balcony. Plastic windows with triple glazing from 2014, cavity insulation throughout the house and the heating system from 2012 underpin the well-maintained technical condition. The garden with spacious lawn and garden shed invites you to linger, and there are two additional parking spaces in front of the house. The flat roof is ideal for adding a photovoltaic system. The basement can be reached via a short flight of stairs and offers plenty of space for utility and technical equipment on approx. 71.8 m². A utility and boiler room with direct access to the front garden area, a hobby room, a workshop and a cozy party cellar create ideal conditions for storage, projects and leisure. There are radiators in the basement; single-glazed windows are still present here. This fact influences the energy rating, but at the same time opens up clear potential for optimization by replacing the basement windows. The separately developed commercial unit comprises approx. 79.5 m² with a spacious commercial space of approx. 66.7 m², office and WC. It was converted in 1993, has been let for many years and has five parking spaces directly in front of the entrance. The unit has planning permission, the surrounding area is designated as a mixed-use area; separate meters are available. There is an internal connection between the residential building and the commercial space, which is currently closed due to third-party tenancy and can be easily reactivated if required. The commercial unit also benefits from the cavity insulation. Note on the energy assessment: The present energy performance certificate only reflects the actual potential of the property to a limited extent, as the assessment is mathematically burdened by the radiators in the basement and the single-glazed windows still installed there. With triple glazing in the living areas, cavity insulation and a comparatively new heating system, significant steps have already been taken; additional improvements such as the replacement of the basement windows and the optional addition of a photovoltaic system on the flat roof can have a further positive impact on the overall energy performance. Would you like to find out more or experience the property in person? Request the exposé with floor plans and rental details and arrange your individual viewing appointment. We look forward to your inquiry.

Amenities

  • Bedrooms: 4
  • Full Bathrooms: 1
  • Partial Bathrooms: 0
  • Property Type: Manufactured In Park
  • Year Built: 1961
  • Built in 1961
  • Home size: 1,544 ft2 / 143.44 m2
  • MLS: 25284017
  • Status: Active

Property brokered by

von Poll Immobilien GmbH

+49 69 269 157 410

  • +49 4461 - 91 74 52 0 (Office Phone)

Contact VON POLL IMMOBILIEN Jever

Contact Agent


Language

Sign In

To save and share favorite properties