$725,000

Change currency

Select Currency

Antillean Guilder

Argentina Peso

Aruban Florin

Australian Dollar

Bahamian Dollar

Barbadian Dollar

Belize Dollar

Bermudan Dollar

Bitcoin

Brazil Real

Bulgarian Lev

Canadian Dollar

Cayman Islands Dollar

Chile Peso

China Yuan Renminbi

Columbian Peso

Costa Rican Colón

Czech Republic Koruna

Denmark Krone

Dominican Peso

Euros

Fiji Dollar

Ghanaian Cedi

Honduras Lempira

Hong Kong Dollar

Hungary Forint

Iceland Krona

India Rupee

Indonesia Rupiah

Israel Shekel

Jamaican Dollar

Japan Yen

Korea (South) Won

Lebanese Pound

Malaysia Ringgit

Mexico Peso

Mauritian Rupee

New Zealand Dollar

Nicaraguan Córdoba

Nigerian Naira

Norway Krone

Pakistan Rupee

Panamanian Balboa

Peruvian Sol

Philippine Peso

Poland Zloty

Russia Ruble

Singapore Dollar

South Africa Rand

Sweden Krona

Switzerland Franc

Taiwan New Dollar

Thailand Baht

Trinidad & Tobago Dollar

Turkey Lira

United Arab Emirates Dirham

United Kingdom Pound

Uruguayan Peso

US Dollar

Viet Nam Dong

Qatar Riyal

 

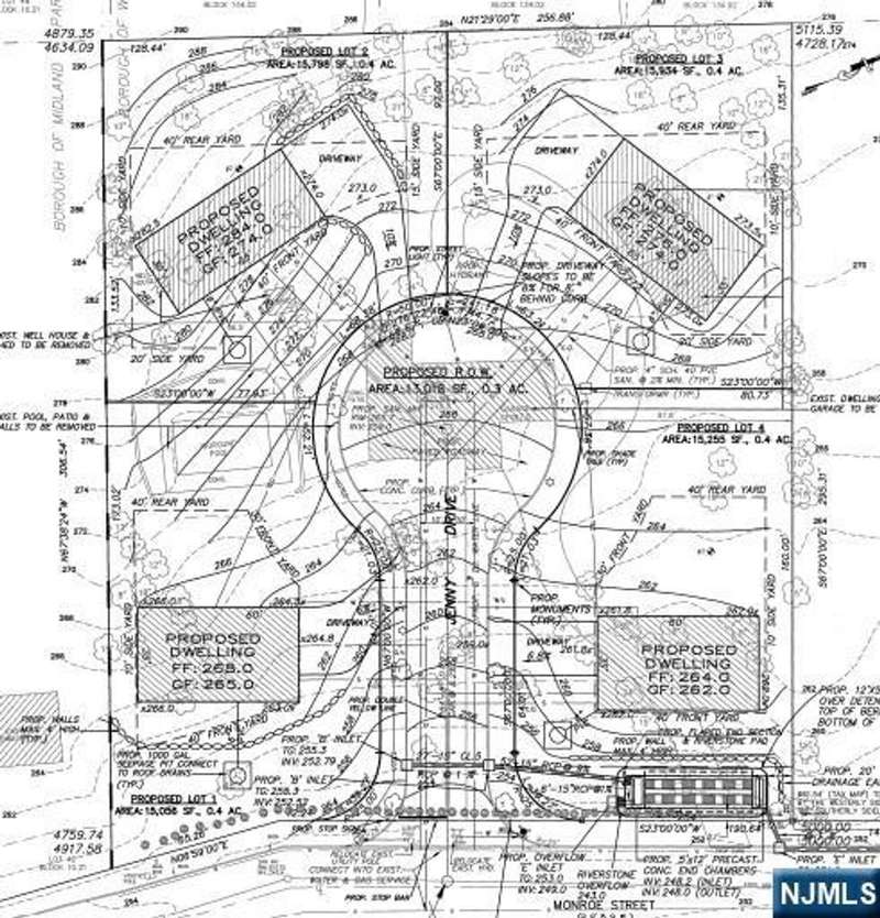
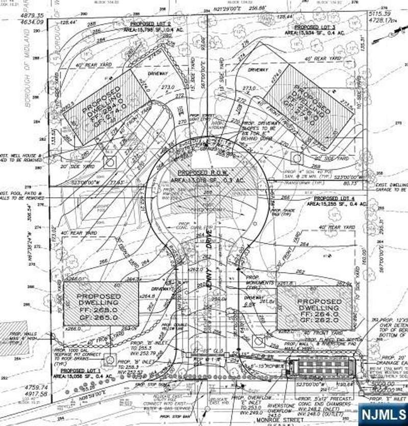
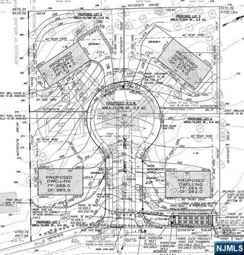
3 Everson Waldwick, NJ, United States 07463

Rare new construction opportunity in Waldwick! Opportunities like this are few and far between, especially in Bergen County. This soon to be developed cul de sac offers four spacious lots, each nearly half an acre, nestled in a quiet, residential neighborhood in the heart of Waldwick, NJ. Imagine designing and building the custom home you've always envisioned, tailored exactly to your lifestyle and preferences. Whether you choose to work with one of our trusted builders who already have thoughtfully designed plans available or bring your own team, you’re in control of your dream home from the ground up. Don't miss out. Land in this location is incredibly limited. Act now to claim your lot and become part of this exclusive new neighborhood. There's truly nothing like brand new construction! Reach out today for more details or to schedule a site visit.

Amenities

  • Bedrooms: 0
  • Full Bathrooms: 0
  • Partial Bathrooms: 0
  • Property Type: Lots and Land
  • Home size: 0 ft2 / 0.00 m2
  • MLS: 25020014
  • Status: Active
This property is from NewJerseyMLS

Property brokered by

Similar Listings

  • 5 Everson
    Waldwick, NJ, United States $775,000 Bedrooms: 0 Full Bathrooms: 0 Details
  • 4 Everson
    Waldwick, NJ, United States $775,000 Bedrooms: 0 Full Bathrooms: 0 Details
  • 34 Nordham Street
    Waldwick, NJ, United States $725,000 Bedrooms: 4 Full Bathrooms: 2 Partial Bathrooms: 1 Details
  • 2 Everson
    Waldwick, NJ, United States $725,000 Bedrooms: 0 Full Bathrooms: 0 Details


Language

Sign In

To save and share favorite properties