$1,408

Listing currency: €1,200

Change currency

Select Currency

Antillean Guilder

Argentina Peso

Aruban Florin

Australian Dollar

Bahamian Dollar

Barbadian Dollar

Belize Dollar

Bermudan Dollar

Bitcoin

Brazil Real

Bulgarian Lev

Canadian Dollar

Cayman Islands Dollar

Chile Peso

China Yuan Renminbi

Columbian Peso

Costa Rican Colón

Czech Republic Koruna

Denmark Krone

Dominican Peso

Euros

Fiji Dollar

Ghanaian Cedi

Honduras Lempira

Hong Kong Dollar

Hungary Forint

Iceland Krona

India Rupee

Indonesia Rupiah

Israel Shekel

Jamaican Dollar

Japan Yen

Korea (South) Won

Lebanese Pound

Malaysia Ringgit

Mexico Peso

Mauritian Rupee

New Zealand Dollar

Nicaraguan Córdoba

Nigerian Naira

Norway Krone

Pakistan Rupee

Panamanian Balboa

Peruvian Sol

Philippine Peso

Poland Zloty

Russia Ruble

Singapore Dollar

South Africa Rand

Sweden Krona

Switzerland Franc

Taiwan New Dollar

Thailand Baht

Trinidad & Tobago Dollar

Turkey Lira

United Arab Emirates Dirham

United Kingdom Pound

Uruguayan Peso

US Dollar

Viet Nam Dong

Qatar Riyal

 

Poplitz, Germany 06425

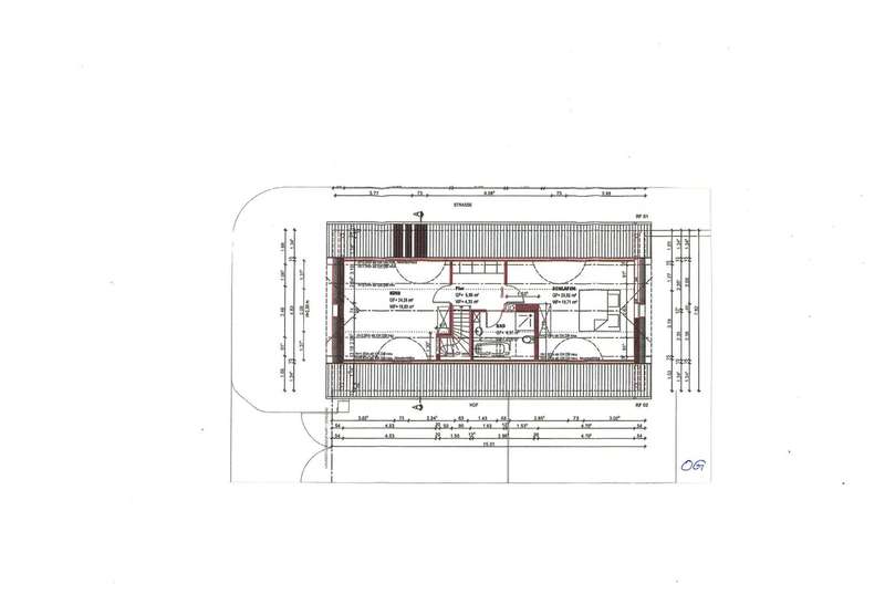
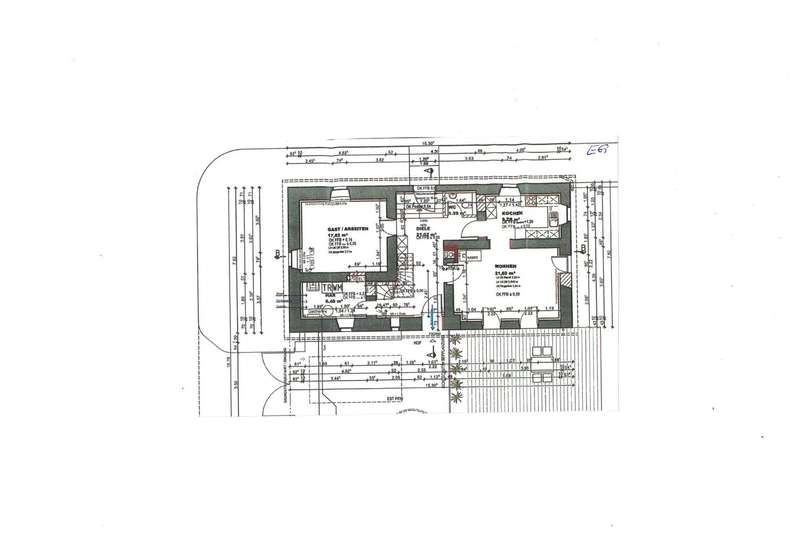
Welcome to this unique opportunity: a detached house that offers living comfort and contemporary furnishings on a living space of approx. 130 m². The property, which was completely renovated in 2023, is situated on a plot of approx. 500 m². It combines modern living standards with a quiet and easily accessible location. The house extends over two levels and comprises a total of four rooms. The heart of the house is the open-plan living and dining area, which receives plenty of light through large windows. The existing fireplace connection makes it possible to provide cozy warmth on cooler evenings and also creates a special atmosphere. The electric underfloor heating on the first floor ensures comfortable temperatures all year round and distributes the heat evenly. The bathroom has modern fittings and includes both a bathtub and a walk-in shower. The daylight design creates a pleasant space to relax and feel good. There is also a guest WC, which provides additional comfort, especially for visitors. Another highlight is the electric gate entrance, which provides convenient access to the property and your own parking space. The garden invites you to linger and can be designed according to your individual wishes - whether as a play area for children, a kitchen garden or a place for sociable evenings with family and friends. Thanks to the well thought-out room layout, modern building services and comfortable furnishings, this detached house is suitable for both couples and small families who value quality living and a quiet residential area. You will find shops, schools and leisure facilities in the immediate vicinity. See the many advantages of this property for yourself and arrange a personal viewing appointment.

Amenities

  • Bedrooms: 1
  • Full Bathrooms: 1
  • Partial Bathrooms: 0
  • Property Type: Residential Lease
  • Home size: 1,410 ft2 / 130.99 m2
  • MLS: 25156026
  • Status: Active

Property brokered by

von Poll Immobilien GmbH

+49 69 269 157 410

  • +49 391 - 50 38 018 0 (Office Phone)

Contact VON POLL IMMOBILIEN Magdeburg

Contact Agent


Language

Sign In

To save and share favorite properties