$383,926

Listing currency: €330,000

Change currency

Select Currency

Antillean Guilder

Argentina Peso

Aruban Florin

Australian Dollar

Bahamian Dollar

Barbadian Dollar

Belize Dollar

Bermudan Dollar

Bitcoin

Brazil Real

Bulgarian Lev

Canadian Dollar

Cayman Islands Dollar

Chile Peso

China Yuan Renminbi

Columbian Peso

Costa Rican Colón

Czech Republic Koruna

Denmark Krone

Dominican Peso

Euros

Fiji Dollar

Ghanaian Cedi

Honduras Lempira

Hong Kong Dollar

Hungary Forint

Iceland Krona

India Rupee

Indonesia Rupiah

Israel Shekel

Jamaican Dollar

Japan Yen

Korea (South) Won

Lebanese Pound

Malaysia Ringgit

Mexico Peso

Mauritian Rupee

New Zealand Dollar

Nicaraguan Córdoba

Nigerian Naira

Norway Krone

Pakistan Rupee

Panamanian Balboa

Peruvian Sol

Philippine Peso

Poland Zloty

Russia Ruble

Singapore Dollar

South Africa Rand

Sweden Krona

Switzerland Franc

Taiwan New Dollar

Thailand Baht

Trinidad & Tobago Dollar

Turkey Lira

United Arab Emirates Dirham

United Kingdom Pound

Uruguayan Peso

US Dollar

Viet Nam Dong

Qatar Riyal

 

Bad Kötzting, Germany 93444

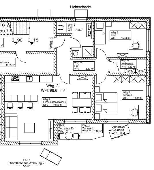
By the fall of 2023, six new condominiums will be built to KFW 55 EE standard, some with unobstructed views, in the best location in Bad Kötzting. Construction has already begun and you can see for yourself on site. The architecture is modern, bright and friendly. Appealing color scheme and clear shapes, high-quality materials in combination with clean lines together with a lovingly thought-out, exclusive room layout result in a unique living feeling. The approx. 99 m² 3-room apartment is accessible barrier-free by elevator. Upon entering the apartment, you will reach the following rooms directly from the hallway: Bathroom with shower and toilet, children's room, storage room, master bedroom and the bright, light-flooded living/dining and cooking area. The large terrace and the adjacent garden area invite you to linger and dream. A fireplace for the possible commissioning of a fireplace or pellet stove in the living / dining area would be available. All residential units are equipped with underfloor heating. Regarding the materials for the interior decoration (tiles, parquet or vinyl flooring and interior doors and plumbing) can be sampled from a pre-selected range. Electric venetian blinds will be installed for shading. Sanitary objects are purchased from well-known manufacturers such as Grohe or Geberit. The heat is generated by an air/heat pump. In the entire residential complex, great importance is attached to energy-saving construction methods. Examples are the aluminum windows with triple thermal insulation glazing and the solid brick construction (stone on stone). The purchase price already includes an outdoor parking space. The pictures are examples based on the existing input plans.

Amenities

  • Bedrooms: 2
  • Full Bathrooms: 1
  • Partial Bathrooms: 0
  • Property Type: Residential
  • Year Built: 2024
  • Built in 2024
  • Home size: 1,061 ft2 / 98.57 m2
  • MLS: 22201041
  • Status: Active

Property brokered by

von Poll Immobilien GmbH

+49 69 269 157 410

  • +49 9971 - 76 95 71 0 (Office Phone)

Contact VON POLL IMMOBILIEN Cham

Contact Agent

Similar Listings

  • Aussenansicht
    Bad Kötzting, Germany $440,933 Bedrooms: 3 Full Bathrooms: 1 Details
  • Aussenansicht
    Bad Kötzting, Germany $424,645 Bedrooms: 3 Full Bathrooms: 1 Details
  • Außen
    Bad Kötzting, Germany $459,548 Bedrooms: 0 Full Bathrooms: 1 Details
  • Aussenansicht (1)
    Bad Kötzting, Germany $422,318 Bedrooms: 3 Full Bathrooms: 1 Details


Language

Sign In

To save and share favorite properties