$5,272

Listing currency: €4,500

Change currency

Select Currency

Antillean Guilder

Argentina Peso

Aruban Florin

Australian Dollar

Bahamian Dollar

Barbadian Dollar

Belize Dollar

Bermudan Dollar

Bitcoin

Brazil Real

Bulgarian Lev

Canadian Dollar

Cayman Islands Dollar

Chile Peso

China Yuan Renminbi

Columbian Peso

Costa Rican Colón

Czech Republic Koruna

Denmark Krone

Dominican Peso

Euros

Fiji Dollar

Ghanaian Cedi

Honduras Lempira

Hong Kong Dollar

Hungary Forint

Iceland Krona

India Rupee

Indonesia Rupiah

Israel Shekel

Jamaican Dollar

Japan Yen

Korea (South) Won

Lebanese Pound

Malaysia Ringgit

Mexico Peso

Mauritian Rupee

New Zealand Dollar

Nicaraguan Córdoba

Nigerian Naira

Norway Krone

Pakistan Rupee

Panamanian Balboa

Peruvian Sol

Philippine Peso

Poland Zloty

Russia Ruble

Singapore Dollar

South Africa Rand

Sweden Krona

Switzerland Franc

Taiwan New Dollar

Thailand Baht

Trinidad & Tobago Dollar

Turkey Lira

United Arab Emirates Dirham

United Kingdom Pound

Uruguayan Peso

US Dollar

Viet Nam Dong

Qatar Riyal

 

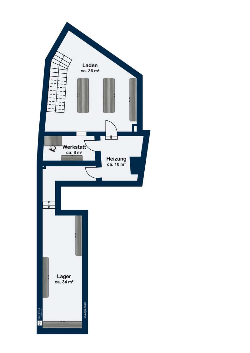
Nördlingen, Germany 86720

This unique commercial unit is located in Nördlingen's pedestrian zone and offers an excellent opportunity for retailers and service providers looking for a prominent location. The historic building, constructed in 1505, presents itself in a well-kept condition and impresses with its charming old building architecture. The property extends over three floors and offers a total rental area of around 300 m². The store or office space takes up around 236 m², offering you flexible space options. The spacious sales area on the first floor creates the best conditions for successful business transactions thanks to its high visibility. An additional storage area of around 55 m² is located in the basement and offers sufficient space for storing goods or as an archive area. This means that goods can be stored efficiently and without long distances. The use of the property is flexible and is suitable not only for retail, but also for office or practice space and other services. Thanks to the individual floor plan design, in consultation with the landlord and subject to structural feasibility, future tenants have the opportunity to adapt the commercial space optimally to their needs. This variability creates space for creative business ideas. It will be possible to rent the property from the end of 2025, leaving sufficient time to plan and carry out any adaptations or conversions in advance. The fit-out of the commercial unit corresponds to a normal quality level and offers a solid starting point for realizing individual design concepts. The location in the pedestrian zone of Nördlingen guarantees a high footfall and therefore excellent conditions for a successful business. In summary, this property offers a rare combination of historic architecture, excellent location and flexible usage options. It is ideal for companies seeking a prominent presence in Nördlingen and offers potential for successful commercial use in one of the city's most sought-after locations. If you have any further questions or would like to arrange a viewing appointment, please do not hesitate to contact us.

Amenities

  • Bedrooms: 0
  • Full Bathrooms: 0
  • Partial Bathrooms: 0
  • Property Type: Residential Lease
  • Year Built: 1505
  • Built in 1505
  • Home size: 0 ft2 / 0 m2
  • MLS: 25248042
  • Status: Active

Property brokered by

von Poll Immobilien GmbH

+49 69 269 157 410

  • +49 9081 - 60 42 67 0 (Office Phone)

Contact VON POLL IMMOBILIEN Landkreis Donau-Ries – Nördlingen

Contact Agent


Language

Sign In

To save and share favorite properties