$516,929

Change currency

Select Currency

Antillean Guilder

Argentina Peso

Aruban Florin

Australian Dollar

Bahamian Dollar

Barbadian Dollar

Belize Dollar

Bermudan Dollar

Bitcoin

Brazil Real

Bulgarian Lev

Canadian Dollar

Cayman Islands Dollar

Chile Peso

China Yuan Renminbi

Columbian Peso

Costa Rican Colón

Czech Republic Koruna

Denmark Krone

Dominican Peso

Euros

Fiji Dollar

Ghanaian Cedi

Honduras Lempira

Hong Kong Dollar

Hungary Forint

Iceland Krona

India Rupee

Indonesia Rupiah

Israel Shekel

Jamaican Dollar

Japan Yen

Korea (South) Won

Lebanese Pound

Malaysia Ringgit

Mexico Peso

Mauritian Rupee

New Zealand Dollar

Nicaraguan Córdoba

Nigerian Naira

Norway Krone

Pakistan Rupee

Panamanian Balboa

Peruvian Sol

Philippine Peso

Poland Zloty

Russia Ruble

Singapore Dollar

South Africa Rand

Sweden Krona

Switzerland Franc

Taiwan New Dollar

Thailand Baht

Trinidad & Tobago Dollar

Turkey Lira

United Arab Emirates Dirham

United Kingdom Pound

Uruguayan Peso

US Dollar

Viet Nam Dong

Qatar Riyal

 

2009 Geneva Place Lexington, KY, United States 40509

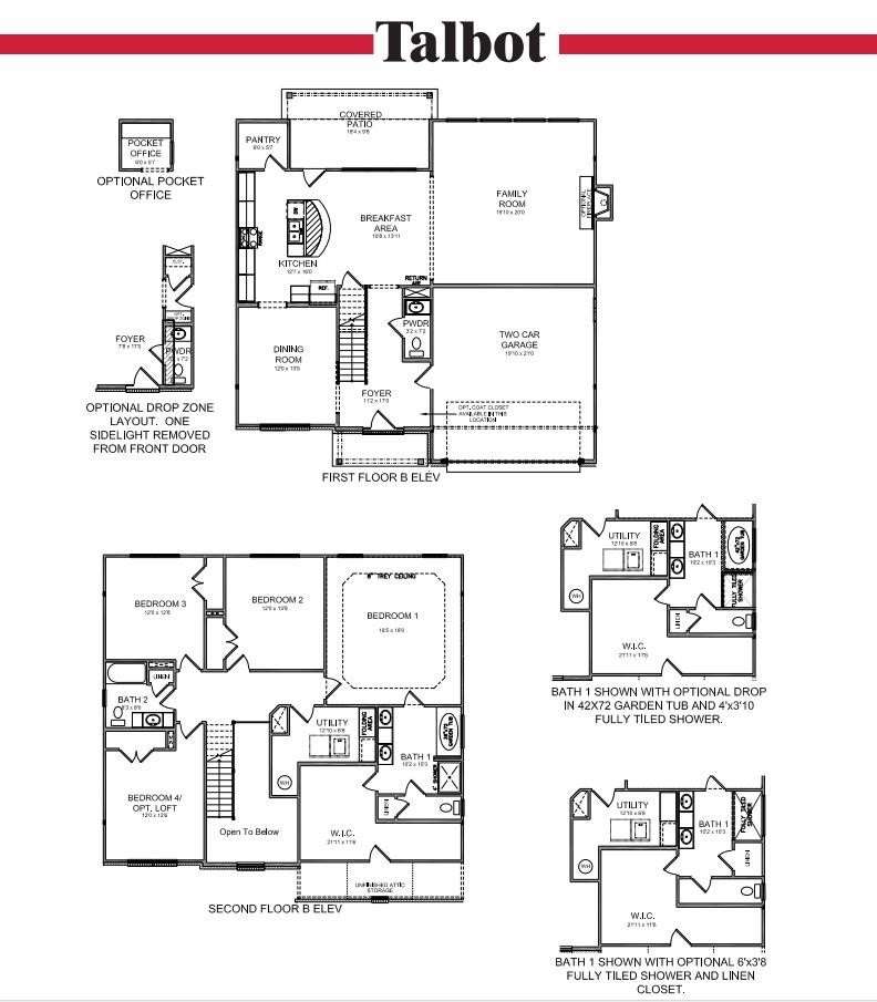
The Talbot floor plan is a traditional two-story floor plan with a family-friendly design. A large family room is open to the kitchen and breakfast area, and the formal dining room is located at the front of the home. The spacious kitchen, which features a full wall of cabinets and countertop space, offers an island, and a large pantry or pocket office option. The kitchen and breakfast area adjoin the covered patio, and expansive windows overlook the rear yard. All bedrooms are upstairs, and the primary bedroom suite includes a garden tub and separate shower, a linen closet and commode closet, and dual vanity. Three large bedrooms and a shared bathroom complete the upstairs. An unfinished storage area above the garage is accessed through the closet.

Amenities

  • Bedrooms: 4
  • Full Bathrooms: 2
  • Partial Bathrooms: 1
  • Property Type: Residential
  • Year Built: 2025
  • Built in 2025
  • Home size: 2,761 ft2 / 256.50 m2
  • MLS: 25004096
  • Status: Pending
Copyright © 2025 ImagineMLS. All rights reserved. All information provided by the listing agent/broker is deemed reliable but is not guaranteed and should be independently verified.

Property brokered by

Christie’s International Real Estate Bluegrass

(859) 245-1179

Presented by Matthew Gerwin

  • (859) 245-1179
  • (859) 245-1179 (Office Phone)

Contact Matthew Gerwin

Contact Agent

Similar Listings

  • 2120 Carnation Drive
    Lexington, KY, United States $476,600 Bedrooms: 4 Full Bathrooms: 3 Details
  • 2813 Blackford Parkway
    Lexington, KY, United States $518,940 Bedrooms: 4 Full Bathrooms: 3 Details
  • 1052jouett01
    1052 Jouett Creek
    Lexington, KY, United States $509,900 Bedrooms: 4 Full Bathrooms: 2 Partial Bathrooms: 1 Details
  • 1944 Belhurst Way
    Lexington, KY, United States $475,099 Bedrooms: 4 Full Bathrooms: 2 Partial Bathrooms: 1 Details
  • 2837 Seneca Lake Road
    Lexington, KY, United States $557,233 Bedrooms: 4 Full Bathrooms: 3 Partial Bathrooms: 1 Details


Language

Sign In

To save and share favorite properties