240.000,00 €

Select Currency

Antillean Guilder

Argentina Peso

Aruban Florin

Australian Dollar

Bahamian Dollar

Barbadian Dollar

Belize Dollar

Bermudan Dollar

Bitcoin

Brazil Real

Bulgarian Lev

Canadian Dollar

Cayman Islands Dollar

Chile Peso

China Yuan Renminbi

Columbian Peso

Costa Rican Colón

Czech Republic Koruna

Denmark Krone

Dominican Peso

Euros

Fiji Dollar

Ghanaian Cedi

Honduras Lempira

Hong Kong Dollar

Hungary Forint

Iceland Krona

India Rupee

Indonesia Rupiah

Israel Shekel

Jamaican Dollar

Japan Yen

Korea (South) Won

Lebanese Pound

Malaysia Ringgit

Mexico Peso

Mauritian Rupee

New Zealand Dollar

Nicaraguan Córdoba

Nigerian Naira

Norway Krone

Pakistan Rupee

Panamanian Balboa

Peruvian Sol

Philippine Peso

Poland Zloty

Russia Ruble

Singapore Dollar

South Africa Rand

Sweden Krona

Switzerland Franc

Taiwan New Dollar

Thailand Baht

Trinidad & Tobago Dollar

Turkey Lira

United Arab Emirates Dirham

United Kingdom Pound

Uruguayan Peso

US Dollar

Viet Nam Dong

Qatar Riyal

 

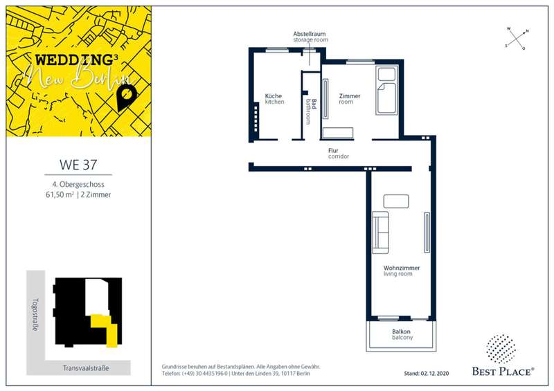
Transvaalstraße 11, 13351 Berlin #58679 Berlin, Germany 13351

- Apartment - The rented 2-room apartment is located on the 4th floor of the front building and covers approx. 62 m². The apartment has a bedroom, a living room, a bathroom and a kitchen and can be reached via the staircase. Only suitable for investors! - Object - WEDDING³ is a beautiful old corner building in the Wedding district of West Berlin dating from 1911, consisting of 1- to 5-room apartments and 3 commercial units. The commission-free units are suitable for singles, couples and families and are located either in the front building or in the side wing. They have spacious living areas of approx. 38.44 to 129.00 m², floor plans typical of old buildings and room heights - perfect for investors! Your place to be in the heart of the up-and-coming trendy district of Wedding!

Amenities

  • Bedrooms: 2
  • Full Bathrooms: 1
  • Partial Bathrooms: 0
  • Property Type: Condo
  • Home size: 657 ft2 / 61.04 m2
  • MLS: 3032474
  • Status: Active

Property brokered by

Best Place Zabel

+49 (176) 20594225

Presented by Nadine Mirke

  • +49 (0) 172 2387

Contact Nadine Mirke

Contact Agent

Similar Listings

  • 1
    Wichertstraße 43, 10439 Berlin #58563
    Berlin, Germany 282.000,00 € Bedrooms: 2 Full Bathrooms: 1 Details
  • 1
    Lückstraße 46, 10317 Berlin #58606
    Berlin, Germany 262.000,00 € Bedrooms: 2 Full Bathrooms: 1 Details
  • 1
    Kunzendorfstraße 2, 14165 Berlin #60248
    Berlin, Germany 255.000,00 € Bedrooms: 2 Full Bathrooms: 1 Details
  • 1
    Wichertstraße 43, 10439 Berlin #58569
    Berlin, Germany 265.000,00 € Bedrooms: 2 Full Bathrooms: 1 Details
  • 1
    Wilmersdorfer Straße 107A, 10629 Berlin #59049
    Berlin, Germany 290.000,00 € Bedrooms: 2 Full Bathrooms: 1 Details


Language

Sign In

To save and share favorite properties