$335,000

Change currency

Select Currency

Antillean Guilder

Argentina Peso

Aruban Florin

Australian Dollar

Bahamian Dollar

Barbadian Dollar

Belize Dollar

Bermudan Dollar

Bitcoin

Brazil Real

Bulgarian Lev

Canadian Dollar

Cayman Islands Dollar

Chile Peso

China Yuan Renminbi

Columbian Peso

Costa Rican Colón

Czech Republic Koruna

Denmark Krone

Dominican Peso

Euros

Fiji Dollar

Ghanaian Cedi

Honduras Lempira

Hong Kong Dollar

Hungary Forint

Iceland Krona

India Rupee

Indonesia Rupiah

Israel Shekel

Jamaican Dollar

Japan Yen

Korea (South) Won

Lebanese Pound

Malaysia Ringgit

Mexico Peso

Mauritian Rupee

New Zealand Dollar

Nicaraguan Córdoba

Nigerian Naira

Norway Krone

Pakistan Rupee

Panamanian Balboa

Peruvian Sol

Philippine Peso

Poland Zloty

Russia Ruble

Singapore Dollar

South Africa Rand

Sweden Krona

Switzerland Franc

Taiwan New Dollar

Thailand Baht

Trinidad & Tobago Dollar

Turkey Lira

United Arab Emirates Dirham

United Kingdom Pound

Uruguayan Peso

US Dollar

Viet Nam Dong

Qatar Riyal

 

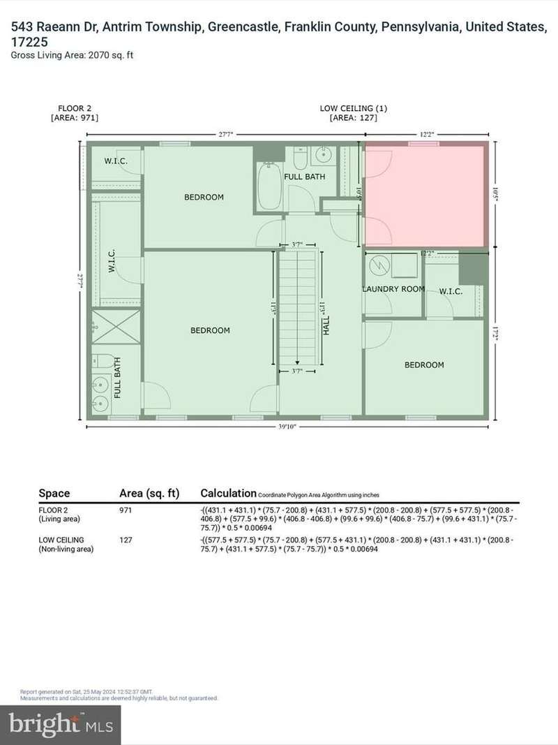
543 Raeann Dr Greencastle, PA, United States 17225

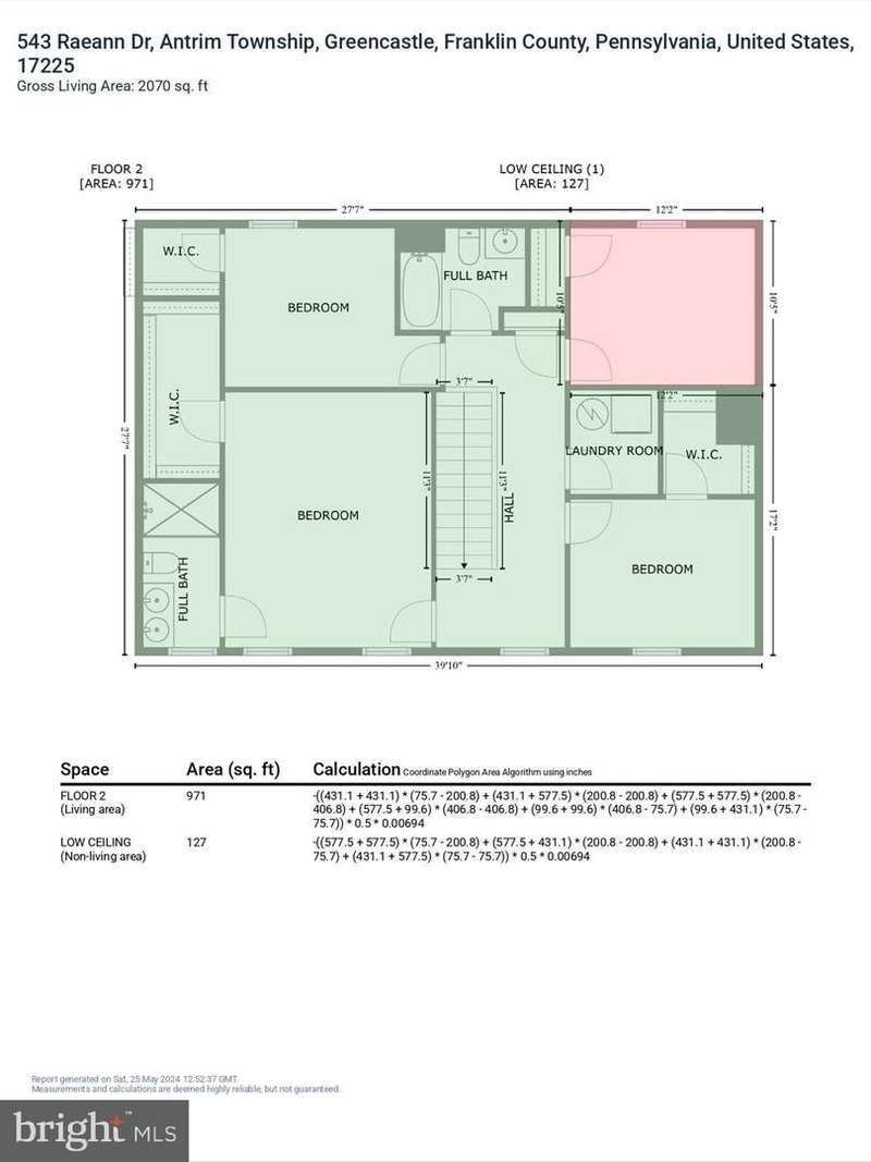
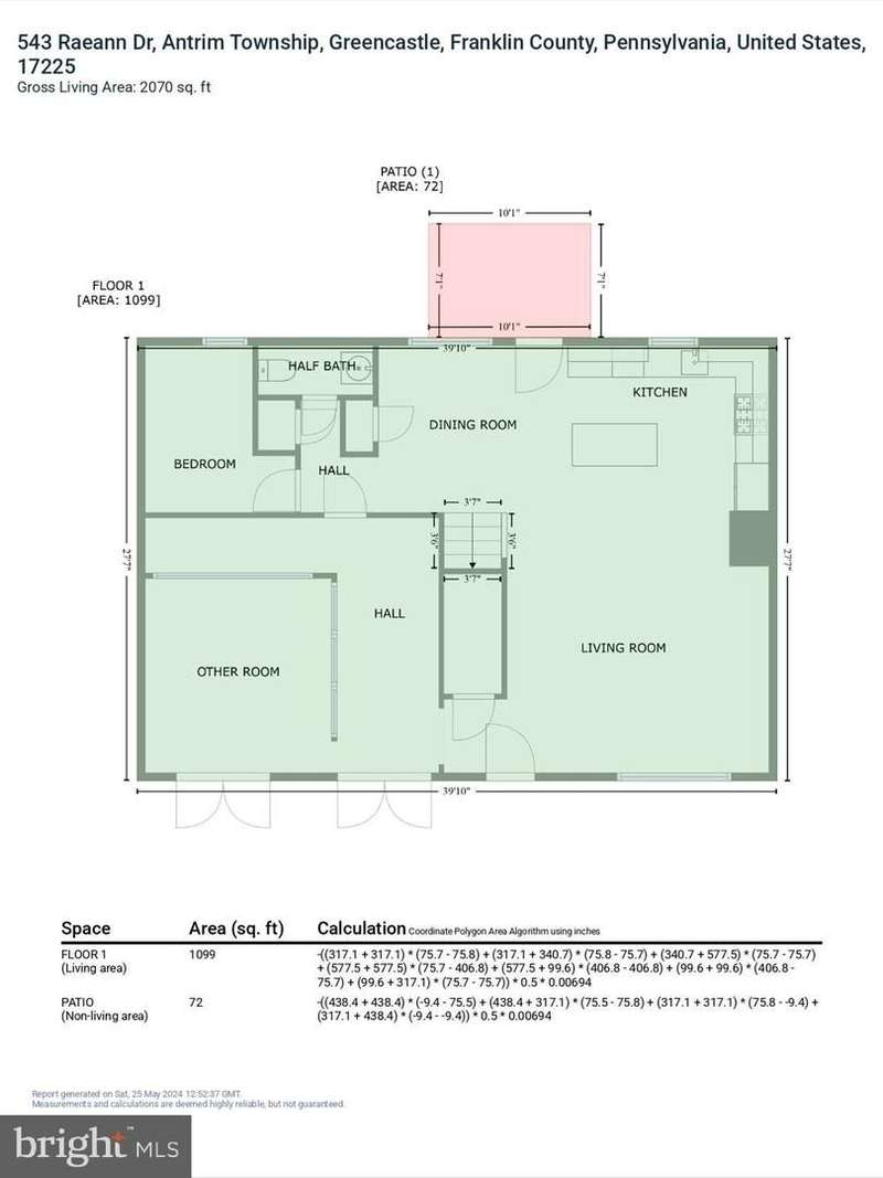
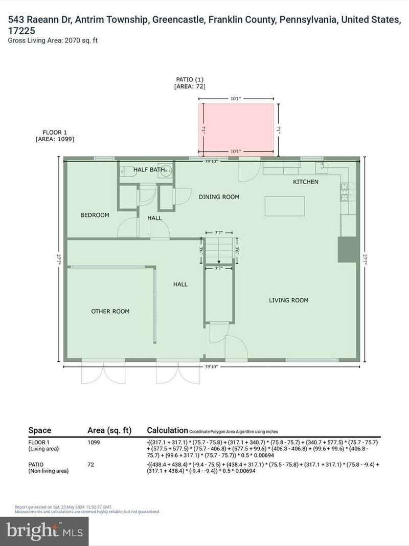
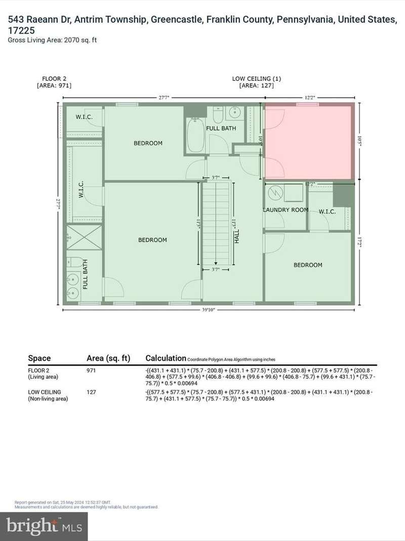
Welcome to 543 Raeann Drive! This fabulous, nearly new home(never occupied) nestled in the community of Greencastle offers upgrades throughout, providing the perfect blend of style and functionality. Step into the light-filled living room, featuring luxury vinyl plank flooring that flows seamlessly into the eat-in kitchen. The kitchen is a chef's dream, equipped with a center island, granite countertops, sleek stainless steel appliances, a casual dining area, and access to the backyard, making it ideal for both everyday meals and entertaining. The main level also includes a convenient office or den, a powder room, and easy access to the garage, enhancing the home's practicality. Upstairs, the primary bedroom serves as a serene retreat with an en-suite full bath and a walk-in closet. Three additional bedrooms, two of which have walk-in closets, offer ample space and versatility. A full bath and a laundry room complete this wonderful home. Additional features include, prewired security, irrigation system, water softener system, 10x14 patio, and attached garage. Instant $10,000 Equity based on a recent appraisal.

Amenities

  • Bedrooms: 4
  • Full Bathrooms: 2
  • Partial Bathrooms: 1
  • Property Type: Residential
  • Architectural Style: Other
  • Year Built: 2022
  • Built in 2022
  • Home size: 0 ft2 / 0.00 m2
  • MLS: PAFL2022802
  • Status: Pending
Copyright © 2025 Long & Foster Real Estate. All rights reserved. All information provided by the listing agent/broker is deemed reliable but is not guaranteed and should be independently verified.

Property brokered by

Long & Foster Real Estate Inc.

(703) 877-7800

Presented by Dave Pard

  • (888) 536-0216 (Office Phone)

Contact Dave Pard

Contact Agent

Similar Listings

  • 12093 Gearhart Road
    Greencastle, PA, United States $359,900 Bedrooms: 3 Full Bathrooms: 3 Details


Language

Sign In

To save and share favorite properties