Antillean Guilder
Argentina Peso
Aruban Florin
Australian Dollar
Bahamian Dollar
Barbadian Dollar
Belize Dollar
Bermudan Dollar
Bitcoin
Brazil Real
Bulgarian Lev
Canadian Dollar
Cayman Islands Dollar
Chile Peso
China Yuan Renminbi
Columbian Peso
Costa Rican Colón
Czech Republic Koruna
Denmark Krone
Dominican Peso
Euros
Fiji Dollar
Ghanaian Cedi
Honduras Lempira
Hong Kong Dollar
Hungary Forint
Iceland Krona
India Rupee
Indonesia Rupiah
Israel Shekel
Jamaican Dollar
Japan Yen
Korea (South) Won
Lebanese Pound
Malaysia Ringgit
Mexico Peso
Mauritian Rupee
New Zealand Dollar
Nicaraguan Córdoba
Nigerian Naira
Norway Krone
Pakistan Rupee
Panamanian Balboa
Peruvian Sol
Philippine Peso
Poland Zloty
Russia Ruble
Singapore Dollar
South Africa Rand
Sweden Krona
Switzerland Franc
Taiwan New Dollar
Thailand Baht
Trinidad & Tobago Dollar
Turkey Lira
United Arab Emirates Dirham
United Kingdom Pound
Uruguayan Peso
US Dollar
Viet Nam Dong
Qatar Riyal
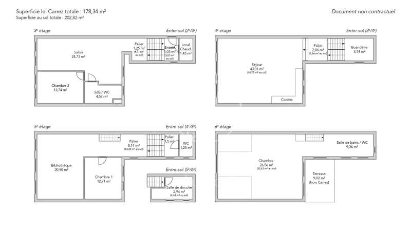
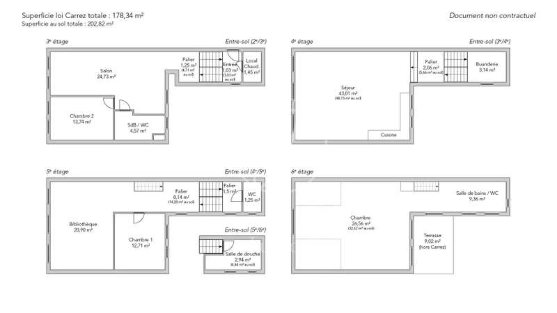
Close to the Saint-Germain market, on the top floor of a beautiful old building, this exceptional property boasts a pleasant 9.02m² terrace and unobstructed views of the Saint-Sulpice church and the rooftops of Paris. This 178.34m² Carrez and 202.82m² ground floor apartment is spread over several levels, two of which are accessed by a private elevator. The reception floor features a large, bright living room, a modern, user-friendly open kitchen and a guest toilet. The upper floor features a bedroom, a spacious library that can be converted into a bedroom, and a shower room. On the top floor, a 26.56m² master suite, with large dressing room, bathroom and toilet, opens onto the sunny terrace with magnificent unobstructed views. The lower floor features a charming living room, a comfortable bedroom with storage space and a bathroom with toilet. A 30m² cellar completes this offer.
