$220,000

Change currency

Select Currency

Antillean Guilder

Argentina Peso

Aruban Florin

Australian Dollar

Bahamian Dollar

Barbadian Dollar

Belize Dollar

Bermudan Dollar

Bitcoin

Brazil Real

Bulgarian Lev

Canadian Dollar

Cayman Islands Dollar

Chile Peso

China Yuan Renminbi

Columbian Peso

Costa Rican Colón

Czech Republic Koruna

Denmark Krone

Dominican Peso

Euros

Fiji Dollar

Ghanaian Cedi

Honduras Lempira

Hong Kong Dollar

Hungary Forint

Iceland Krona

India Rupee

Indonesia Rupiah

Israel Shekel

Jamaican Dollar

Japan Yen

Korea (South) Won

Lebanese Pound

Malaysia Ringgit

Mexico Peso

Mauritian Rupee

New Zealand Dollar

Nicaraguan Córdoba

Nigerian Naira

Norway Krone

Pakistan Rupee

Panamanian Balboa

Peruvian Sol

Philippine Peso

Poland Zloty

Russia Ruble

Singapore Dollar

South Africa Rand

Sweden Krona

Switzerland Franc

Taiwan New Dollar

Thailand Baht

Trinidad & Tobago Dollar

Turkey Lira

United Arab Emirates Dirham

United Kingdom Pound

Uruguayan Peso

US Dollar

Viet Nam Dong

Qatar Riyal

 

6 Stoneridge Ct #29 Baltimore, MD, United States 21239

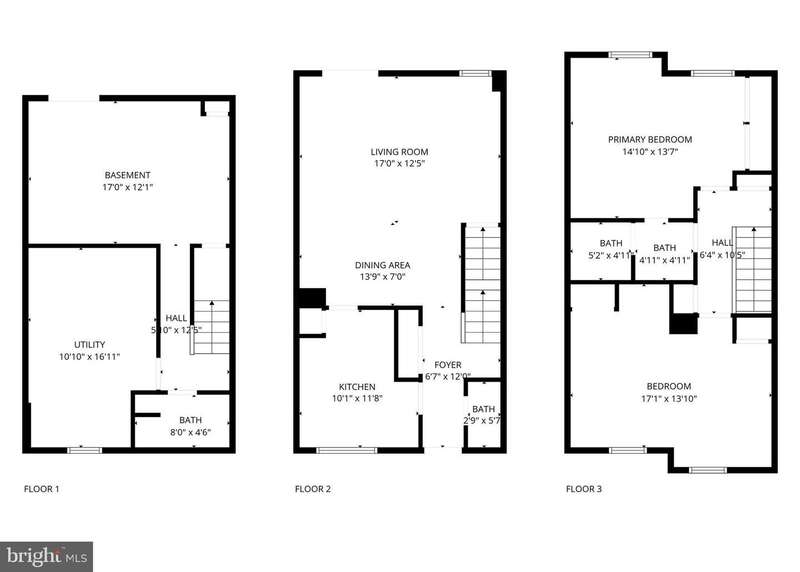
Multiple Offers - Highest and Best Due by Sunday, 10/26/2025 at 6:00 PM. Discover this spacious 2-bedroom, 2.5-bath interior townhouse, nestled within the secure and gated community of Stoneoaks. This property offers a fantastic opportunity for buyers willing to put in some TLC to personalize and transform it into a beautiful home. The home features a comfortable layout with plenty of potential, making it an excellent investment at a great price. Enjoy the privacy and security of a gated community while creating your dream space. Don't miss out on this opportunity to own in a convenient location with great amenities!

Amenities

  • Bedrooms: 2
  • Full Bathrooms: 2
  • Partial Bathrooms: 1
  • Property Type: Residential Common Interest
  • Architectural Style: Other
  • Year Built: 1975
  • Built in 1975
  • Home size: 0 ft2 / 0.00 m2
  • MLS: MDBC2143518
  • Status: Pending
Copyright © 2025 Long & Foster Real Estate. All rights reserved. All information provided by the listing agent/broker is deemed reliable but is not guaranteed and should be independently verified.

Property brokered by

Long & Foster Real Estate Inc.

(703) 877-7800

Presented by Robert W Flynn

  • (888) 536-0216 (Office Phone)

Contact Robert W Flynn

Contact Agent

Similar Listings

  • 3827 Boarman Ave
    Baltimore, MD, United States $199,900 Bedrooms: 3 Full Bathrooms: 1 Details
  • 5307 Wyndholme Cir #102
    Baltimore, MD, United States $200,000 Bedrooms: 2 Full Bathrooms: 2 Details
  • 8029 Neighbors Ave
    Baltimore, MD, United States $205,000 Bedrooms: 3 Full Bathrooms: 1 Details
  • 8811 Stone Ridge Cir #201
    Baltimore, MD, United States $230,000 Bedrooms: 3 Full Bathrooms: 2 Details
  • 413 Imla St
    Baltimore, MD, United States $209,000 Bedrooms: 2 Full Bathrooms: 1 Partial Bathrooms: 1 Details


Language

Sign In

To save and share favorite properties