$450,000

Change currency

Select Currency

Antillean Guilder

Argentina Peso

Aruban Florin

Australian Dollar

Bahamian Dollar

Barbadian Dollar

Belize Dollar

Bermudan Dollar

Bitcoin

Brazil Real

Bulgarian Lev

Canadian Dollar

Cayman Islands Dollar

Chile Peso

China Yuan Renminbi

Columbian Peso

Costa Rican Colón

Czech Republic Koruna

Denmark Krone

Dominican Peso

Euros

Fiji Dollar

Ghanaian Cedi

Honduras Lempira

Hong Kong Dollar

Hungary Forint

Iceland Krona

India Rupee

Indonesia Rupiah

Israel Shekel

Jamaican Dollar

Japan Yen

Korea (South) Won

Lebanese Pound

Malaysia Ringgit

Mexico Peso

Mauritian Rupee

New Zealand Dollar

Nicaraguan Córdoba

Nigerian Naira

Norway Krone

Pakistan Rupee

Panamanian Balboa

Peruvian Sol

Philippine Peso

Poland Zloty

Russia Ruble

Singapore Dollar

South Africa Rand

Sweden Krona

Switzerland Franc

Taiwan New Dollar

Thailand Baht

Trinidad & Tobago Dollar

Turkey Lira

United Arab Emirates Dirham

United Kingdom Pound

Uruguayan Peso

US Dollar

Viet Nam Dong

Qatar Riyal

 

52 Rickarby Mobile, AL, United States 36606

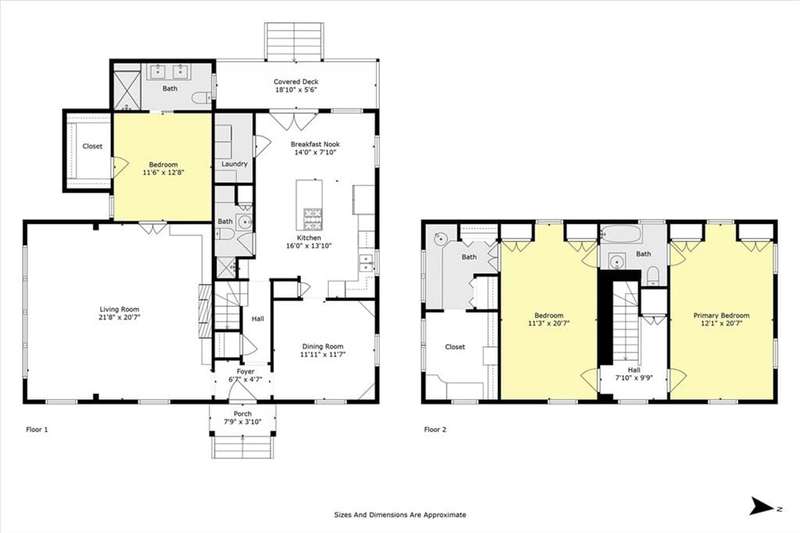
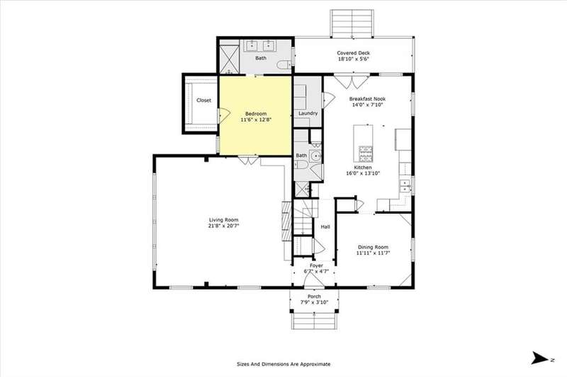
***OPEN HOUSE, SAT., OCT. 4TH, 12-2.***Charming Colonial on a Rare Double Lot in Midtown! Welcome home to this beautifully maintained colonial, perfectly positioned on a corner double lot with lush landscaping and a fully fenced backyard. Step inside to a chef's kitchen designed for cooking and entertaining, featuring granite countertops, a gas range, double ovens, pantry, and a sunny breakfast area. The formal dining room with built-in corner cabinets adds timeless charm and is perfect for hosting dinner parties. Enjoy your morning coffee or evening glass of wine on the covered back porch, a peaceful retreat any time of day. The primary suite is located on the main level and offers a luxurious walk-in shower and double vanity, along with a walk in closet. Upstairs, a bright landing leads to two generously sized bedrooms connected by a Jack-and-Jill bath, providing the perfect layout for family or guest. Buyer responsible for verifying all measurements and relevant details.

Amenities

  • Bedrooms: 3
  • Full Bathrooms: 3
  • Partial Bathrooms: 0
  • Property Type: Residential
  • Year Built: 1935
  • Built in 1935
  • Home size: 2,307 ft2 / 214.33 m2
  • MLS: 7648518
  • Status: Active

Property brokered by

Roberts Brothers Inc.

(251) 661-4660

Presented by Eliese McAllister

  • (251) 661-4660 (Office Phone)

Contact Eliese McAllister

Contact Agent

Similar Listings

  • 8570 Vintage Woods Drive
    Mobile, AL, United States $450,000 Bedrooms: 4 Full Bathrooms: 2 Details
  • 0 Garden
    Mobile, AL, United States $469,500 Bedrooms: 0 Full Bathrooms: 0 Details
  • 4083 Todd Boulevard
    Mobile, AL, United States $424,500 Bedrooms: 3 Full Bathrooms: 2 Partial Bathrooms: 1 Details
  • Front Of Structure
    3755 Claridge Road
    Mobile, AL, United States $443,500 Bedrooms: 4 Full Bathrooms: 3 Details
  • 258 Suffolk
    Mobile, AL, United States $495,000 Bedrooms: 4 Full Bathrooms: 3 Partial Bathrooms: 2 Details


Language

Sign In

To save and share favorite properties