$1,408

Listing currency: €1,200

Change currency

Select Currency

Antillean Guilder

Argentina Peso

Aruban Florin

Australian Dollar

Bahamian Dollar

Barbadian Dollar

Belize Dollar

Bermudan Dollar

Bitcoin

Brazil Real

Bulgarian Lev

Canadian Dollar

Cayman Islands Dollar

Chile Peso

China Yuan Renminbi

Columbian Peso

Costa Rican Colón

Czech Republic Koruna

Denmark Krone

Dominican Peso

Euros

Fiji Dollar

Ghanaian Cedi

Honduras Lempira

Hong Kong Dollar

Hungary Forint

Iceland Krona

India Rupee

Indonesia Rupiah

Israel Shekel

Jamaican Dollar

Japan Yen

Korea (South) Won

Lebanese Pound

Malaysia Ringgit

Mexico Peso

Mauritian Rupee

New Zealand Dollar

Nicaraguan Córdoba

Nigerian Naira

Norway Krone

Pakistan Rupee

Panamanian Balboa

Peruvian Sol

Philippine Peso

Poland Zloty

Russia Ruble

Singapore Dollar

South Africa Rand

Sweden Krona

Switzerland Franc

Taiwan New Dollar

Thailand Baht

Trinidad & Tobago Dollar

Turkey Lira

United Arab Emirates Dirham

United Kingdom Pound

Uruguayan Peso

US Dollar

Viet Nam Dong

Qatar Riyal

 

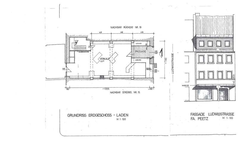
Hof, Germany 95028

An office space of approx. 120 m² is available for rent at Ludwigstraße 17 in Hof. The entrance area offers large shop windows, which can be used very well as exhibition space. The premises are divided into three rooms that can be used in a variety of ways. For further details, please contact Ms. Kristina Wimmer, real estate agent (IHK) on mobile 0151/68 47 09 01.

Amenities

  • Bedrooms: 0
  • Full Bathrooms: 0
  • Partial Bathrooms: 0
  • Property Type: Residential Lease
  • Home size: 0 ft2 / 0 m2
  • MLS: 25468006-1
  • Status: Active

Property brokered by

von Poll Immobilien GmbH

+49 69 269 157 410

  • +49 9281 - 59 69 693 (Office Phone)

Contact VON POLL IMMOBILIEN Hof (Saale)

Contact Agent


Language

Sign In

To save and share favorite properties