1.375.000,00 €

Select Currency

Antillean Guilder

Argentina Peso

Aruban Florin

Australian Dollar

Bahamian Dollar

Barbadian Dollar

Belize Dollar

Bermudan Dollar

Bitcoin

Brazil Real

Bulgarian Lev

Canadian Dollar

Cayman Islands Dollar

Chile Peso

China Yuan Renminbi

Columbian Peso

Costa Rican Colón

Czech Republic Koruna

Denmark Krone

Dominican Peso

Euros

Fiji Dollar

Ghanaian Cedi

Honduras Lempira

Hong Kong Dollar

Hungary Forint

Iceland Krona

India Rupee

Indonesia Rupiah

Israel Shekel

Jamaican Dollar

Japan Yen

Korea (South) Won

Lebanese Pound

Malaysia Ringgit

Mexico Peso

Mauritian Rupee

New Zealand Dollar

Nicaraguan Córdoba

Nigerian Naira

Norway Krone

Pakistan Rupee

Panamanian Balboa

Peruvian Sol

Philippine Peso

Poland Zloty

Russia Ruble

Singapore Dollar

South Africa Rand

Sweden Krona

Switzerland Franc

Taiwan New Dollar

Thailand Baht

Trinidad & Tobago Dollar

Turkey Lira

United Arab Emirates Dirham

United Kingdom Pound

Uruguayan Peso

US Dollar

Viet Nam Dong

Qatar Riyal

 

Eiswerderstraße 10A, 13585 Berlin #58714 Berlin, Germany 13585

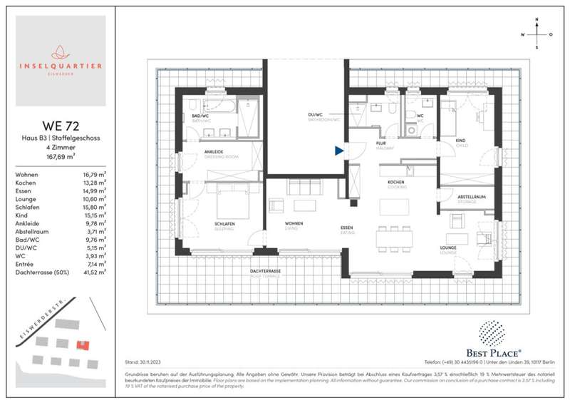
Penthouse living on a new level: move into your TOP-equipped new-build penthouse in the Inselquartier Eiswerder soon. This light-flooded penthouse apartment impresses with its exquisite furnishings and timeless elegance. The heart of the apartment is the open-plan living area: it offers enough space for a dining table where you can get together with family and friends for a delicious dinner and for a cozy seating area where you can relax at the end of the day. The penthouse also has a device for a fireplace. Floor-to-ceiling windows open up a spectacular view of the water, providing fascinating impressions at any time of day. Another highlight is the wrap-around terrace: here you can enjoy breakfast with the family with breathtaking views or treat yourself to a glass of wine while watching picturesque sunsets and enjoying life to the full. In the two spacious bathrooms, you will find high-quality brand-name products, a rain shower and a bathtub that promises pure wellness. An elevator takes you conveniently to your apartment door, and the penthouse also has an underground parking space. Here you can live in an exclusive and peaceful environment while enjoying the amenities of the Berlin metropolis. An ideal retreat for couples and families!

Amenities

  • Bedrooms: 4
  • Full Bathrooms: 1
  • Partial Bathrooms: 0
  • Property Type: Condo
  • Home size: 1,805 ft2 / 167.69 m2
  • MLS: 3032592
  • Status: Active

Property brokered by

Best Place Zabel

+49 (176) 20594225

Presented by Nadine Mirke

  • +49 (0) 172 2387

Contact Nadine Mirke

Contact Agent

Similar Listings

  • 1
    Pallasstraße 24-26, 10781 Berlin #59695
    Berlin, Germany 1.478.236,00 € Bedrooms: 4 Full Bathrooms: 1 Details
  • Floorplan
    Marshallstraße 1, 14169 Berlin #60369
    Berlin, Germany 1.655.294,00 € Bedrooms: 3 Full Bathrooms: 1 Details
  • 1
    Pallasstraße 24-26, 10781 Berlin #59696
    Berlin, Germany 1.560.557,00 € Bedrooms: 4 Full Bathrooms: 1 Details
  • Vogelperspektive mit der Lage unweit der Havel
    Berlin, Germany $1,872,716 Bedrooms: 3 Full Bathrooms: 1 Details
  • 1
    Simplonstraße 12, 10245 Berlin #59486
    Berlin, Germany 1.739.000,00 € Bedrooms: 4 Full Bathrooms: 1 Details


Language

Sign In

To save and share favorite properties