$2,398,000

Change currency

Select Currency

Antillean Guilder

Argentina Peso

Aruban Florin

Australian Dollar

Bahamian Dollar

Barbadian Dollar

Belize Dollar

Bermudan Dollar

Bitcoin

Brazil Real

Bulgarian Lev

Canadian Dollar

Cayman Islands Dollar

Chile Peso

China Yuan Renminbi

Columbian Peso

Costa Rican Colón

Czech Republic Koruna

Denmark Krone

Dominican Peso

Euros

Fiji Dollar

Ghanaian Cedi

Honduras Lempira

Hong Kong Dollar

Hungary Forint

Iceland Krona

India Rupee

Indonesia Rupiah

Israel Shekel

Jamaican Dollar

Japan Yen

Korea (South) Won

Lebanese Pound

Malaysia Ringgit

Mexico Peso

Mauritian Rupee

New Zealand Dollar

Nicaraguan Córdoba

Nigerian Naira

Norway Krone

Pakistan Rupee

Panamanian Balboa

Peruvian Sol

Philippine Peso

Poland Zloty

Russia Ruble

Singapore Dollar

South Africa Rand

Sweden Krona

Switzerland Franc

Taiwan New Dollar

Thailand Baht

Trinidad & Tobago Dollar

Turkey Lira

United Arab Emirates Dirham

United Kingdom Pound

Uruguayan Peso

US Dollar

Viet Nam Dong

Qatar Riyal

 

0 Great Pond North Andover, MA, United States 01845

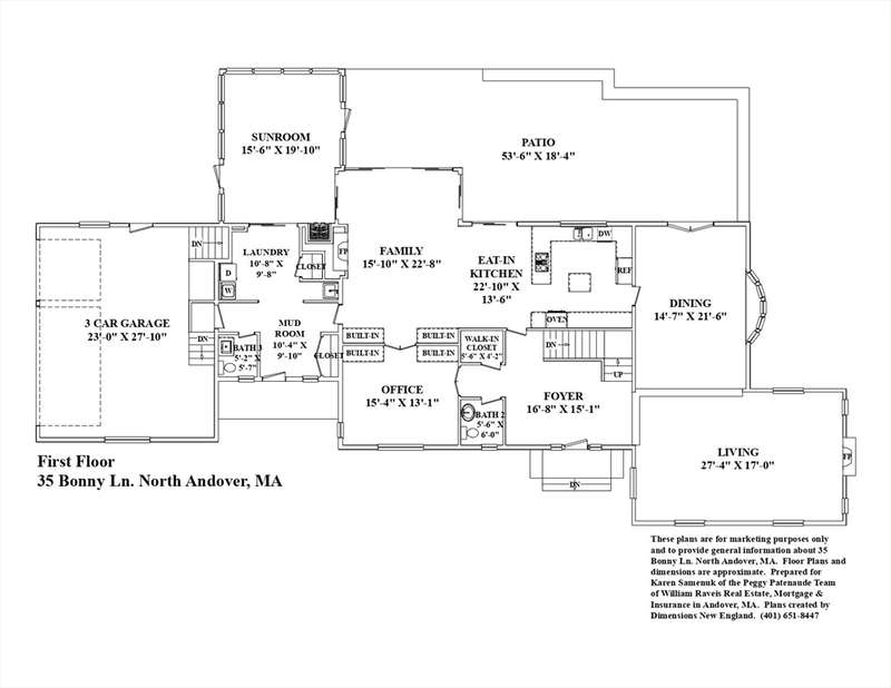
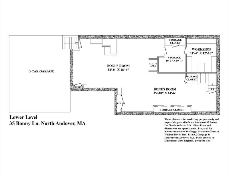
WATERFRONT "residential developable land" on glorious Lake Cochichewick being sold together with existing 6000sf residence on adjacent lot! This listing offers 2.1 acres of prime lakefront land plus sprawling contemporary home with additional 1.1 acres at 35 Bonny Ln. Land has street frontage and lake frontage. See attached survey. Properties are part of the coveted cul-de-sac of beautiful homes on Bonny Ln. The residence, built in 1981, has expansive first floor with multiple lakeside doors & windows, sunroom and bluestone patios and offers four bedrooms and three full and two half bathrooms. See attached floorplans. Explore investment opportunities by developing waterfront parcel or update existing home and/or construct additional dwelling(s) on extra land for personal use or sale. Development of land will require approvals from town boards. Located in watershed district. Buyer/Buyer's Agent to perform own due diligence. Exceptional opportunity with many intriguing possibilities!

Amenities

  • Bedrooms: 0
  • Full Bathrooms: 0
  • Partial Bathrooms: 0
  • Property Type: Land
  • Home size: 0 ft2 / 0 m2
  • MLS: 73439026
  • Status: Active

Property brokered by

William Raveis Real Estate - CT

(877) 339-4082

Presented by Peggy Patenaude

  • (978) 475-5100 (Office Phone)

Contact Peggy Patenaude

Contact Agent

Similar Listings

  • 35 Bonny
    North Andover, MA, United States $2,398,000 Bedrooms: 4 Full Bathrooms: 3 Partial Bathrooms: 2 Details
  • 35 Bonny
    North Andover, MA, United States $2,398,000 Bedrooms: 4 Full Bathrooms: 3 Partial Bathrooms: 2 Details
  • 0 Great Pond
    North Andover, MA, United States $2,398,000 Bedrooms: 0 Full Bathrooms: 0 Details


Language

Sign In

To save and share favorite properties