$809,261

Listing currency: CA$1,130,000

Change currency

Select Currency

Antillean Guilder

Argentina Peso

Aruban Florin

Australian Dollar

Bahamian Dollar

Barbadian Dollar

Belize Dollar

Bermudan Dollar

Bitcoin

Brazil Real

Bulgarian Lev

Canadian Dollar

Cayman Islands Dollar

Chile Peso

China Yuan Renminbi

Columbian Peso

Costa Rican Colón

Czech Republic Koruna

Denmark Krone

Dominican Peso

Euros

Fiji Dollar

Ghanaian Cedi

Honduras Lempira

Hong Kong Dollar

Hungary Forint

Iceland Krona

India Rupee

Indonesia Rupiah

Israel Shekel

Jamaican Dollar

Japan Yen

Korea (South) Won

Lebanese Pound

Malaysia Ringgit

Mexico Peso

Mauritian Rupee

New Zealand Dollar

Nicaraguan Córdoba

Nigerian Naira

Norway Krone

Pakistan Rupee

Panamanian Balboa

Peruvian Sol

Philippine Peso

Poland Zloty

Russia Ruble

Singapore Dollar

South Africa Rand

Sweden Krona

Switzerland Franc

Taiwan New Dollar

Thailand Baht

Trinidad & Tobago Dollar

Turkey Lira

United Arab Emirates Dirham

United Kingdom Pound

Uruguayan Peso

US Dollar

Viet Nam Dong

Qatar Riyal

 

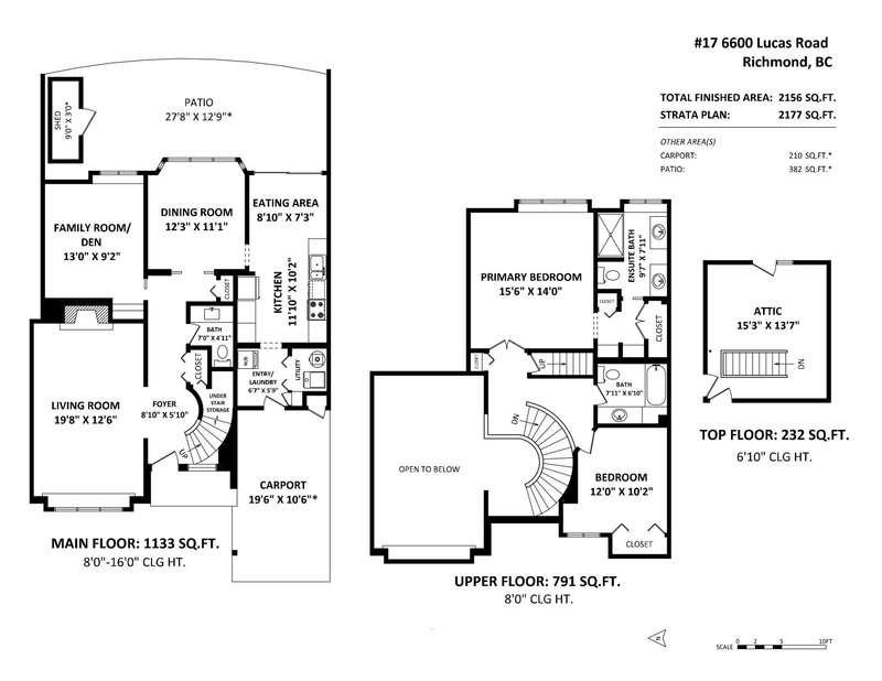
17 6600 Lucas Road Richmond, Canada V7C 4T1

Gorgeous & peaceful end unit at highly sought after Huntly Wynd (gated complex). This 2 bed and den townhouse has rooms on 2 levels (finished attic on the 3rd level is perfect for 3rd bedroom or hobby room). Relax in the serenity of your large private patio basking in trees and fabulous landscaping. Approximately $200k in renovations: kitchen with S/S appliances, bathrooms, H/W flooring, tiles, paint, steam shower and much more. Accommodates house sized furniture. Lots of storage. Two parking. Outstanding clubhouse: indoor pool, hot tub, sauna, gym, guest suite, amenity room. 24-hour security guard. Walk to Blundell Elementary School & Blundell Centre. Short drive to Richmond Centre & everything Steveston offers (waterfront trails, restaurants, shops, festivals).

General Info:

Property Type: Residential

Dwelling Type: Townhouse

Home Style: 3 Storey, Three Or More Levels

Ownership: Freehold Strata

Common Interest: Condominium

Year built: 1976

(Age: 49)

Living Area: 2,177 sq. ft.202 m2

Floor Area - Unfinished: 0 sq. ft.0 m2

Building Area - Total: 2,177 sq. ft.202 m2

Levels: Three Or More

Bedrooms: 2

(Above Grd: 2)

Bathrooms:

3.0

(Full:2/Half:1)

Kitchens: 1

Rooms: 10

Num Storeys: 3

Taxes: $3,633.19 /
2025

Water Supply: Public

Plan: NWS628

Additional Info:

Name of Complex/Subdivision: Huntly Wynd

Construction Materials: Frame Wood, Other (Exterior), Wood Siding

Foundation: Slab

Basement: None

Roof: Wood

No. Floor Levels: 3.0

Floor Finish: Hardwood, Other, Tile, Carpet

Floor Area Fin - Above Grade: 2,177 sq. ft.202 m2

Floor Area Fin - Above Main: 801 sq. ft.74.4 m2

Floor Area Fin - Above Main 2: 299 sq. ft.27.8 m2

Floor Area Fin - Main: 1,077 sq. ft.100 m2

Floor Area Fin - Below Main: 0 sq. ft.0 m2

Floor Area Fin - Below Grade: 0 sq. ft.0 m2

Floor Area Fin - Basement: 0 sq. ft.0 m2

Floor Area Fin - Total: 2,177 sq. ft.202 m2

Heating: Forced Air

Fireplaces: 1

Fireplace Details: Gas

Patio And Porch Features: Patio

Parking Features: Carport Single, Open

Parking: Carport Single, Open

# Of Parking Spaces - Total: 2

# Of Covered Spaces: 1.0

# Of Carport Spaces: 1.0

Parking Total/Covered: 2 / 1

Pool Features: Indoor

Spa Features: Swirlpool/Hot Tub

Suite: None

Short Term Rent / Lease Description: no airBnB

Interior Features: Guest Suite, Storage, Central Vacuum Roughed In

Site Influences: Central Location, Private, Gated, Shopping Nearby

Amenities: Indoor Pool, Laundry In Unit, Clubhouse, Exercise Centre, Recreation Facilities, Sauna/Steam Room, Swirlpool/Hot Tub, Guest Suite, Storage

Association Amenities: Clubhouse, Exercise Centre, Recreation Facilities, Sauna/Steam Room, Caretaker, Maintenance Grounds, Management, Snow Removal

Community Features: Gated, Shopping Nearby

Main Level Bathrooms: 1

Features Included: Window Coverings, Swirlpool/Hot Tub, Central Vacuum Roughed In

Features Included: Indoor Pool, Dishwasher, Refrigerator, Microwave, Laundry In Unit, Clubhouse, Exercise Centre, Sauna/Steam Room, Swirlpool/Hot Tub, Storage

Appliances: Washer/Dryer, Dishwasher, Refrigerator, Stove, Microwave

Locker: No

Laundry Features: In Unit

Window Features: Window Coverings

Legal Description: STRATA LOT 17, BLOCK 4N, PLAN NWS628, SECTION 19, RANGE 6W, NEW WESTMINSTER LAND DISTRICT, TOGETHER WITH AN INTEREST IN THE COMMON PROPERTY IN PROPORTION TO THE UNIT ENTITLEMENT OF THE STRATA LOT AS SHOWN ON FORM 1

Amenities

  • Bedrooms: 2
  • Full Bathrooms: 2
  • Partial Bathrooms: 1
  • Property Type: Residential For Sale
  • Year Built: 1976
  • Built in 1976
  • Home size: 0 ft2 / 0 m2
  • MLS: 19170-R3039392
  • Status: Active

Property brokered by

Dexter Realty

(604) 263-1144

Presented by Kevin Skipworth

Contact Kevin Skipworth

Contact Agent

Similar Listings

  • 22800 Windsor #44
    Richmond, Canada $608,664 Bedrooms: 4 Full Bathrooms: 3 Details
  • 7680 Granville #701
    Richmond, Canada $597,277 Bedrooms: 2 Full Bathrooms: 2 Details
  • 6688 Pearson Way # 1008
    Richmond, Canada $572,212 Bedrooms: 1 Full Bathrooms: 1 Details
  • 8333 Anderson Road # 203
    Richmond, Canada $572,212 Bedrooms: 2 Full Bathrooms: 2 Details
  • 12931 Railway Avenue # 121
    Richmond, Canada $585,819 Bedrooms: 2 Full Bathrooms: 2 Details


Language

Sign In

To save and share favorite properties