Historic Home with Modern Updates and Large Garden

EUR €1,250,000 (USD $1,462,655) *current conversion
Wermelskirchen, Germany

Property Highlights

  • Historic detached house with modern extension
  • Spacious open kitchen with storage room
  • Large dining and living areas
  • Extensive 1,000 m² garden with terrace
  • Two parking spaces on property
  • Quiet location near schools and transport

Overview

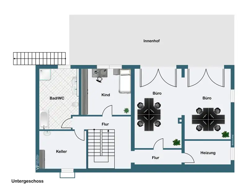
Spacious retreat with historic charm and extensive garden This prestigious detached house combines historic charm with modern living quality and is located in an absolutely green setting on a plot of approx. 1,579 m². The property was originally built in 1920 and underwent extensive refurbishment in 2013 and was doubled in size with a high-quality extension. With a generous living space of approx. 280 m² and a total of 7 rooms, this house offers versatile usage options for couples, families or home office professionals. The quality of the fixtures and fittings is high and the overall condition is as good as new. Even the entrance area on the first floor conveys an inviting sense of space thanks to the impressive entrance hall. The open kitchen is practically designed and has a separate storage room. The dining area of approx. 26 m² is generously proportioned and invites you to enjoy meals together. The adjoining living area of approx. 48 m² offers plenty of space for socializing. Generous window areas create a bright and friendly atmosphere and offer a charming view of the extensive garden. A modern bathroom with shower completes the offer on this living level. There are two bedrooms on the top floor, one of which has direct access to a bathroom with shower and bathtub as well as a dressing room. Two additional storage rooms offer further storage space. In the basement, you will find another bedroom, a bathroom with shower and bath and a separate wing with two versatile rooms. These are suitable for both living and working purposes. Both rooms have an exit to the large, secluded inner courtyard, which offers additional open space. The rooms are complemented by a boiler room and a cellar. The approx. 1,000 m² garden is invitingly designed and has a large wooden terrace and a garden shed - ideal for relaxing hours in the greenery or social gatherings. Two parking spaces are available directly on the property. The location and transport connections should be emphasized: There is no through traffic in the surrounding area, so peace and privacy are guaranteed. At the same time, you can reach local public transport, shopping facilities, schools and kindergartens in no time at all. Come and view the numerous advantages of this exceptional property, which successfully combines historical value and modern living comfort, for yourself.
Show More Show Less

Property Features

Wermelskirchen, Germany offers the following features:

Bedrooms: 5
Bathrooms: 3 Full
Living Area: 3013.89sf
Property Type: Residential
Status: Active
Reference ID: 25218014

Map