Premium Apartment on 40th Floor with Skyline Views

EUR €1,500,000 (USD $1,747,742) *current conversion
Frankfurt am Main, Germany

Property Highlights

  • Located on 40th floor in tallest tower
  • Floor-to-ceiling windows with city views
  • Balcony with glass balustrade and skyline views
  • Communal garden with lounge and herb garden
  • 24-hour concierge service available
  • Underground parking space included

Overview

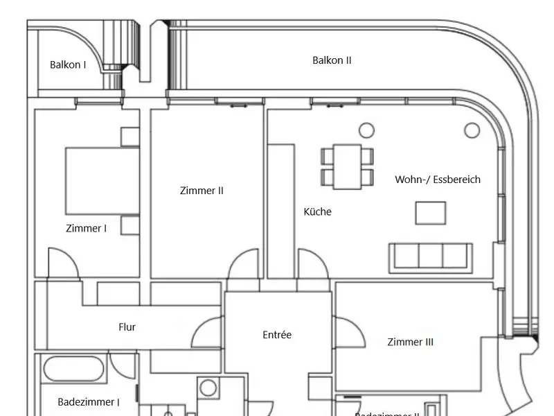
This absolute premium apartment is located on the fortieth floor of the Grand Tower, currently Germany's tallest residential tower at 180 meters - the most sought-after landmark building in Frankfurt. The transparent architecture, reminiscent of honeycombs, and the floor-to-ceiling windows offer airy living and magnificent views. The living/dining area is flooded with light and features curved glass fronts. From here, you have access to the balcony with all-round glass balustrade and views of Frankfurt and its skyline, as well as the Taunus and the entire surrounding area. The three bedrooms, one of which has its own balcony, offer great and practical living space. The communal Grand Garden on the seventh floor with lounge areas and herb garden and the Sunset Terrace on the 43rd floor invite you to relax and provide a communicative, urban atmosphere and magnificent views of the sunsets. The 24-hour concierge service and the Club Kitchen on the seventh floor are further highlights of this exceptional apartment. An underground parking space is included in the purchase price. The apartment is ideal for singles, couples or small families with up to one child who appreciate urban living in the Grandtower, combined with a high level of living comfort and communal areas for relaxing.
Show More Show Less

Property Features

Frankfurt am Main, Germany offers the following features:

Bedrooms: 3
Bathrooms: 2 Full
Living Area: 1276.6sf
Property Type: Residential
Status: Active
Reference ID: 25001182

What's Nearby

Local businesses near Frankfurt am Main, Germany:

School: < 1 mile
Grocery/Shopping Center: < 1 mile
Public Transportation: < 1 mile
Gym: < 1 mile
Hospital: < 1 mile
Police Station: < 1 mile

Map