Historic Townhouse with Elegant Garden in Frankfurt's Westend

EUR €4,400,000 (USD $5,124,323) *current conversion
Frankfurt am Main, Germany

Property Highlights

  • Listed historic Wilhelminian townhouse
  • High ceilings with original stucco ornaments
  • Restored herringbone parquet flooring
  • Modern branded kitchen with appliances
  • Landscaped garden with fountain and terrace
  • Two daylight bathrooms with walk-in showers

Overview

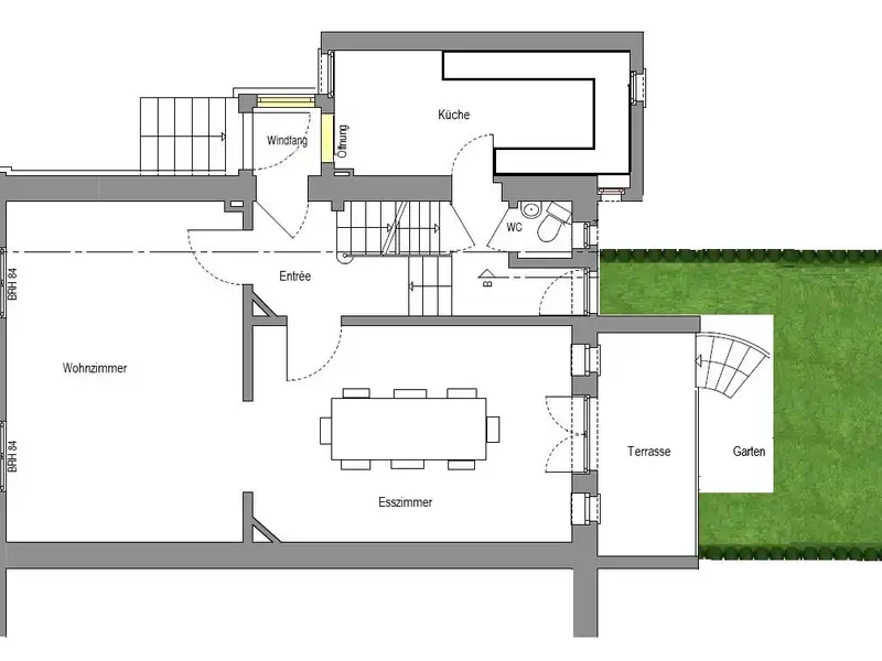
The late classicist town house built in 1880 in the Wilhelminian style is an absolute rarity in Frankfurt's Westend. The historic building ensemble consists of several listed clinker brick townhouses and impresses with its stylish historic appearance. The upscale neighborhood in Westend-Nord provides a quiet residential area and at the same time a perfect micro-location with excellent shopping and leisure facilities and in the immediate vicinity of Grüneburgpark and Palmengarten. The stately property has been thoroughly and extensively renovated and lovingly revitalized in keeping with the style of the listed building, so that all stylistic elements are retained: Approx. 3.50 m high ceilings with restored lavish original stucco ornaments, fine wooden window frames with large glass surfaces and antique handles, doors true to the original, noble historic wooden staircase with elegant banisters and the solid high-quality herringbone parquet flooring create a cultivated living flair. The future owner does not have to undertake any time-consuming and costly renovations and could move straight in! The entrance hall with hallway is entered through an original front door and historic porch: two representative light-flooded salons with period features and stucco ceilings lead onto the charming terrace, which has a stone staircase leading to the garden. The romantically ingrown and lovingly landscaped garden with fountain is a green, quiet and dreamy oasis in the middle of the Westend. The comfortable branded kitchen in elegant light tones offers modern appliances for comfortable cooking. There are two light-flooded spacious bedrooms on the second floor and a further two friendly rooms on the top floor, as well as two luxurious daylight bathrooms with walk-in showers and modern design objects. The elegant historic town villa for discerning living aesthetes combines late classicist architecture with contemporary, comfortable living. The property in Anglo-Saxon townhouse style is a cultural monument in Frankfurt that is second to none! Townhouse flair of London, New England or Amsterdam with nostalgic elegance - in the middle of the Westend!
Show More Show Less

Property Features

Frankfurt am Main, Germany offers the following features:

Bedrooms: 4
Bathrooms: 2 Full
Living Area: 1937.5sf
Property Type: Residential
Status: Active
Reference ID: 25001235

What's Nearby

Local businesses near Frankfurt am Main, Germany:

School: < 1 mile
Gym: < 1 mile
Hospital: < 1 mile
Grocery/Shopping Center: < 1 mile
Public Transportation: < 1 mile
Police Station: < 1 mile

Map