Waterfront Corner Condo with Historic Charm in Biddeford

USD $925,000
2 Main Street, Biddeford, Maine, 04005, USA

Property Highlights

  • Corner unit with water views from all windows
  • Historic charm with exposed brick and beams
  • Upgraded kitchen with stainless appliances
  • In-unit pantry and laundry room
  • Amenities include EV charging and bike storage
  • Close to Saco Transportation Center and Portland

Overview

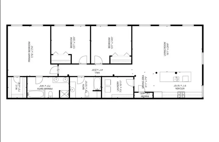
This rare three bedroom, two bathroom corner condo with water views from every single window is arguably the best unit at the Pepperell Mill Condos. It is one of only 3 three bedroom condos in the building. The condo exudes historic charm with its sky-high ceilings, exposed brick and beams, antique maple hardwood floors, and oversized windows. Modern conveniences include an upgraded kitchen with stainless steel appliances and granite countertops, central ducted heating and cooling, and an in-unit pantry/laundry room. The generous bedroom sizes easily accommodate king-sized beds and your personal decorating flair. North-east facing windows flood the brick-accented living room with morning light, creating a delightful, sunlit atmosphere. Imagine living vibrantly and connected in the heart of revitalized Biddeford, Maine. Enthusiasm is palpable for the chance to own a home within the Pepperell Mill community, where a dynamic blend of businesses, artists and residents co-exist harmoniously. Once an essential mill town powered by the Saco River, Biddeford has transformed into a creative hub, offering an ideal environment for individuals who want to be part of this exciting and growing tightly knit community. Situated on the scenic Saco River, this 17-acre property is conveniently located just a 20-minute drive from Portland, and a short distance to the Saco Transportation Center, which provides daily train service to Boston. Amenities include low HOA and utility fees (internet included!), parking space, solar energy, a dog park, dog wash, grilling areas, bike storage and EV charging. Enjoy the charm of small-town living paired with the vibrancy of a community brimming with talent. Biddeford is home to award-winning local businesses, restaurants, coffee shops, and bagel shops gaining recognition throughout the Northeast. Additional units are available to find your perfect place in this thriving community.
Show More Show Less

Property Features

2 Main Street, Biddeford, Maine, 04005, USA offers the following features:

Bedrooms: 3
Bathrooms: 2 Full
Living Area: 1850
Property Type: Condo
Status: Pending
Reference ID: 1627779

What's Nearby

Local businesses near 2 Main Street, Biddeford, Maine, 04005, USA:

Gym: < 1 mile
Grocery/Shopping Center: < 1 mile
Public Transportation: < 1 mile
School: < 1 mile
Police Station: < 1 mile
Hospital: < 1 mile

Map