Waterfront Condo with Historic Charm and Scenic Views

USD $815,000
2 Main Street, Biddeford, Maine, 04005, USA

Property Highlights

  • Waterfront views of Saco River Falls
  • Historic charm with exposed brick and beams
  • Original 1850s hardwood floors
  • Updated kitchen with ample storage
  • In-unit washer and dryer closet
  • Designated parking with extra rental option

Overview

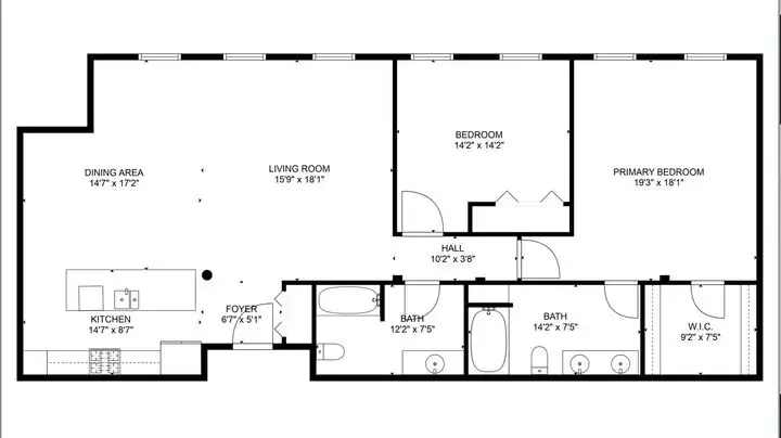
Experience breathtaking waterfront living in Biddeford, Maine with this remarkable 1,674 sq ft condo overlooking the Saco River Falls and historic mills. This rare two-bedroom, two-bathroom residence offers unobstructed water views and exceptional historic charm, featuring soaring ceilings, exposed brick and beams, oversized windows, and original 1850s hardwood floors. Sunlight fills the home throughout the day, while the spacious kitchen provides standout storage and display options. Thoughtfully designed, the layout includes a dedicated dining area and a cozy office nook—perfect for remote work. The expansive living room showcases three oversized windows framing stunning river views. Modern comforts include efficient heat pumps for heating and cooling, plus an in-unit washer/dryer. Both bedrooms are generously sized and easily accommodate king beds, offering plenty of room for personal style. This condo is an excellent choice for downsizing or simplifying, with an oversized storage unit and a designated parking space, plus the option to rent an additional spot. Residents enjoy direct access to the vibrant Pepperell Mill Campus, filled with businesses, makers, and wellness studios. Enjoy the convenience of walking indoors to Banded Brewing, the Garden Bar, Portland Pie, a ceramics studio, a spinning studio, massage therapy, photography studios, and more—all without stepping outside. Located in the heart of revitalized Downtown Biddeford, the Pepperell Mill community blends residential living with restaurants, coffee shops, and artist spaces along the Saco River. Biddeford has become one of Maine's fastest-growing creative hubs, offering a walkable, energetic lifestyle with top local dining, entertainment, and amenities just steps from your door.
Show More Show Less

Property Features

2 Main Street, Biddeford, Maine, 04005, USA offers the following features:

Bedrooms: 2
Bathrooms: 2 Full
Living Area: 1674
Property Type: Condo
Status: Active
Reference ID: 1628746

What's Nearby

Local businesses near 2 Main Street, Biddeford, Maine, 04005, USA:

Gym: < 1 mile
Grocery/Shopping Center: < 1 mile
Public Transportation: < 1 mile
School: < 1 mile
Police Station: < 1 mile
Hospital: < 1 mile

Map