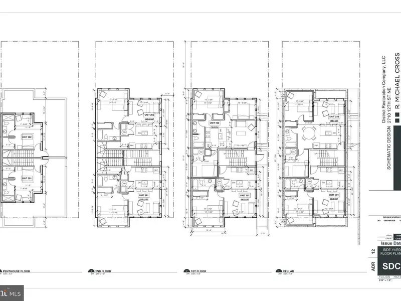
Commercially Zoned Lot with Approved Plans for 6 Units

USD $564,200
2710 12th Street Northeast, Washington, District of Columbia, 20018, USA

Property Highlights

  • Commercially zoned vacant lot
  • Potential for 6-unit building
  • No chimney setback issues
  • Curb cut already in place
  • Schematic design phase paid
  • No adjoining properties on sides

Overview

For an Investor/Builder/Developer or house hacking primary residence owner. Build this potential 6 unit and sell as condos or don't subdivide it and create a 6 unit apartment. Or live in one and rent / AirBnB the others. This commercially zoned vacant lot is perfect for a by right project as it helps avoid so many of the complexities associated with adding to DC's housing stock. --No chimney setback issues --No adjoining property on either side that would cause 10' rule --The previous structure was already demolished eliminating that risk and cost --There's no required lengthy underpinning of adjoining structures --The property already has a curb cut. --Schematic Design phase with Cross Design Group already paid for. --New structure would still not connect to neighboring structures on either side. The architecture firm has determined there's a total buildable square footage of 5,184sf if you go for the IZ bonus. Please see the prospective pro forma in the photos that is made in accordance with the buildable square footage and uses a cost of construction equal to $225 per sf. The property is fenced off for safety so please view property at your own risk.
Show More Show Less

Property Features

2710 12th Street Northeast, Washington, District of Columbia, 20018, USA offers the following features:

Property Type: Residential
Status: Active
Reference ID: DCDC2147074

What's Nearby

Local businesses near 2710 12th Street Northeast, Washington, District of Columbia, 20018, USA:

Public Transportation: < 1 mile
School: < 1 mile
Police Station: < 1 mile
Gym: < 1 mile
Hospital: < 1 mile
Grocery/Shopping Center: < 1 mile

Map