Classic Brick Veneer Home in Quiet Warragul North Location

Price Upon Request
8 Sinclair Street, Warragul, VIC, 3820, Australia

Property Highlights

  • Quiet street location in Warragul North
  • Close to Warragul North Primary School
  • Polished hardwood timber flooring
  • Updated kitchen with breakfast bar
  • Enclosed spacious yard with tiered landscaping
  • Single car garage with roller door

Overview

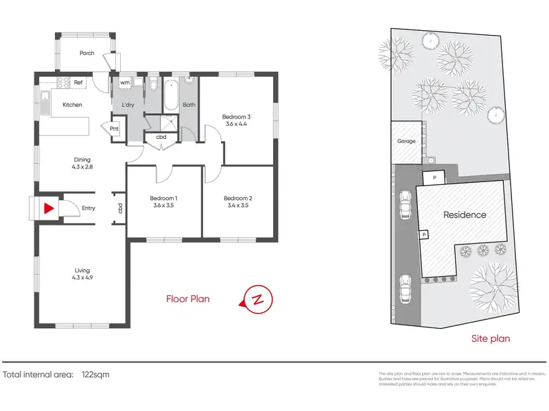
Afforded with an elevated aspect in a quiet street in Warragul’s north, this classic brick veneer home with tile roof has been partially refurbished and provides for comfortable living. Superbly situated close to the Warragul North Primary School, park land and convenience store, features of this charming residence include polished hardwood timber flooring, ducted gas heating, split system cooling, 3 spacious bedrooms, sundrenched formal lounge and separate meals area adjoining an updated kitchen with breakfast bar. The rear porch overlooks a spacious and enclosed yard area with tiered landscaping and single car brick garage with roller door. Well located, this property presents as an excellent opportunity for investors and would be owner occupiers looking to secure an excellent property with a respected address.
Show More Show Less

Property Features

8 Sinclair Street, Warragul, VIC, 3820, Australia offers the following features:

Bedrooms: 3
Bathrooms: 1 Full
Property Type: residential
Status: Active
Reference ID: 222P619639

Map