Remodeled Bungalow with Spacious Yard and City Access

USD $195,000
609 Old Newton Pike, Troy, Ohio, 45373, USA

Property Highlights

  • Brand-new kitchen and bath
  • Spacious yard on nearly half acre
  • Detached 2-car garage
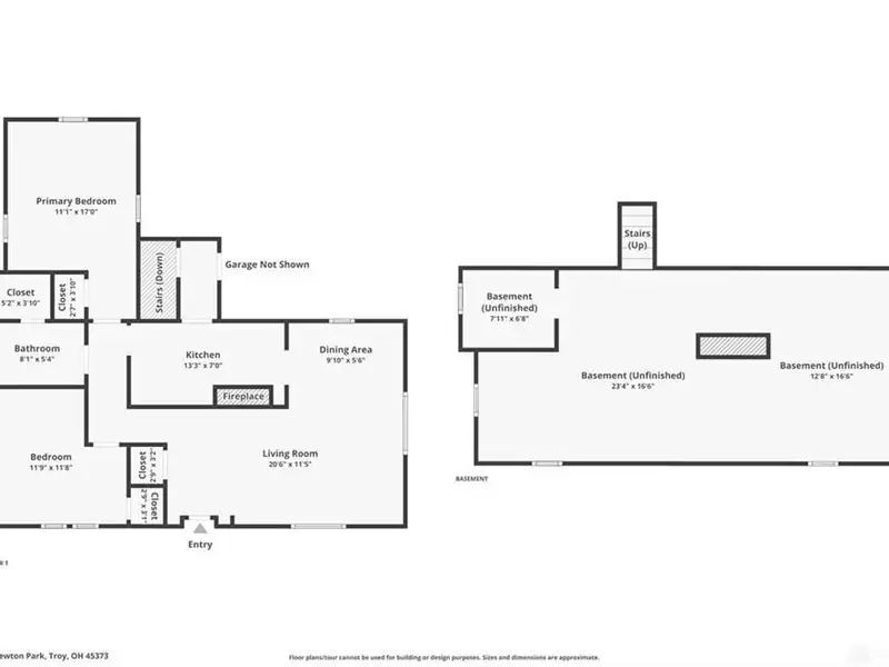
  • Full unfinished basement
  • Recent HVAC and roof updates
  • Convenient location near I-75 and shopping

Overview

Charming 2-Bedroom Bungalow with Country Feel & City Convenience! Welcome to this beautifully remodeled 2-bedroom bungalow, nestled on nearly half an acre in town. Enjoy the peaceful, country-like setting with all the conveniences of city living just minutes away. Featuring a brand-new kitchen and bath, stylish waterproof plank flooring, and a full unfinished basement, this home is move-in ready. The spacious yard offers room to relax or entertain, and the detached 2-car garage adds extra functionality. Located near I-75, the Kroger Shopping Center, and a variety of restaurants, you will appreciate the easy access to everything you need while enjoying the tranquility of your own private retreat. Also, there is potential to split the lot and build an additional home, an excellent opportunity for development or income generation. Complete New Roof November 2025. New Water Heater November 2025 and HVAC Tune-Up. New Central Air June 2025, GFA Furnace December 2022, Interior Remodeled, Complete New Kitchen, Complete New Bath & Window, Flooring Throughout, Plumbing & Electrical Updates, Light Fixtures, Some New Interior Doors, New Exterior Doors, New Roof on Back Porch Entry, Landscaping... Don't hesitate, schedule an appointment today and make this great little value yours!
Show More Show Less

Property Features

609 Old Newton Pike, Troy, Ohio, 45373, USA offers the following features:

Bedrooms: 2
Bathrooms: 1 Full
Living Area: 901sf
Property Type: Residential
Status: Pending
Reference ID: 945234

Map