Top Floor Artist's Studio with High Ceilings and Garden Views

EUR €4,690,000 (USD $5,461,719) *current conversion
Paris, France

Property Highlights

  • Top floor with elevator access
  • Spacious artist's studio layout
  • 6-meter high ceilings in living room
  • Views overlooking gardens
  • Two suites with private bathrooms
  • Includes two cellars for storage

Overview

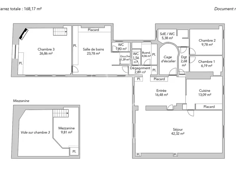
On the top floor by elevator of a beautiful building, this former artist's studio with 168.17sqm Carrez and 171.08sqm floor area offers exceptional volumes. An entrance hall leads to a magnificent through reception room with 6-meter high ceilings and views over the gardens. The night space includes two beautiful suites, one with a cathedral ceiling and its own bathroom, toilet and dressing room, the other with its own shower room and toilet, and a study. Two cellars complete this offer.
Show More Show Less

Property Features

Paris, France offers the following features:

Bedrooms: 3
Bathrooms: 1 Full | 2 Half | 1 One Quarter | 1 Three Quarter
Living Area: 1810.17sf
Property Type: Condo
Status: Active
Reference ID: 83601679

What's Nearby

Local businesses near Paris, France:

Gym: < 1 mile
Hospital: < 1 mile
Public Transportation: < 1 mile
School: < 1 mile
Grocery/Shopping Center: < 1 mile
Police Station: < 1 mile

Map