Architect-renovated Top-floor Apartment Near Luxembourg Gardens

EUR €1,950,000 (USD $2,271,562) *current conversion
Paris, France

Property Highlights

  • Top-floor apartment with elevator access
  • Architect-renovated with air conditioning
  • Double living room with open kitchen
  • Unobstructed views of rooftops and Pantheon
  • High ceilings of 4.10m in living room
  • Includes cellar and laundry area

Overview

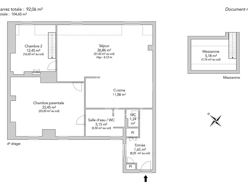
Just a stone's throw from the Luxembourg Gardens and the Panthéon, in a quiet street, a magnificent 92.06sqm air-conditioned, architect-renovated, walk-through apartment (loi Carrez) on the sixth and top floor with elevator. It comprises an entrance hall, laundry area and guest toilet, a splendid double living room with open, fully-equipped kitchen and unobstructed view of the sky, the rooftops of Paris and the Pantheon, a suite with bathroom featuring bath, shower and toilet, and a children's bedroom with mezzanine. A cellar completes this offer. This rare property will seduce you with its highly sought-after location, its top-floor elevator position, its view over Paris, its compact floor plan, its meticulous renovation and its generous ceiling height of 4.10m to the living room ridge. A janitor and a bicycle room in the condominium. EXCLUSIVE.
Show More Show Less

Property Features

Paris, France offers the following features:

Bedrooms: 2
Bathrooms: 1 Full | 1 Half
Living Area: 990.93sf
Property Type: Condo
Status: Active
Reference ID: 86414999

What's Nearby

Local businesses near Paris, France:

Gym: < 1 mile
Grocery/Shopping Center: < 1 mile
School: < 1 mile
Hospital: < 1 mile
Public Transportation: < 1 mile
Police Station: < 1 mile

Map