Spacious Family Apartment Near Luxembourg Gardens

EUR €2,750,000 (USD $3,202,702) *current conversion
Paris, France

Property Highlights

  • Close to Luxembourg Gardens and shops
  • Large double reception room
  • Fully-equipped separate kitchen
  • Master suite with dressing room
  • Multiple bathrooms and shower rooms
  • Includes cellar for extra storage

Overview

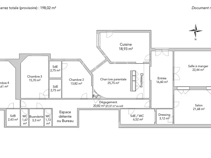
Located in the immediate vicinity of the Luxembourg Gardens, a remarkable 198.02m² loi Carrez family apartment on the first floor of a beautiful, well-maintained old building. This property, with its generous volumes and old-world charm, benefits from a harmonious layout and recent renovation. The entrance gallery leads to a vast double reception room comprising a living room and a dining room, extended by a large separate, fully-equipped kitchen. The master suite, overlooking the plant-filled courtyard, features a double dressing room and en-suite shower room with toilet, creating a warm and intimate space. The night area also features three other generously-sized bedrooms, also overlooking the courtyard. The first two each have their own shower room, and the last one has its own bathroom. The hallway features a relaxation or office area, a laundry room and two separate toilets. Circulation is optimized and spaces perfectly designed for comfortable family living. Calm, functionality and elegance come together in this rare apartment, ideally located close to shops, transport and schools such as L'Alsacienne, Sévigné and Lavoisier. A cellar completes this offer.
Show More Show Less

Property Features

Paris, France offers the following features:

Bedrooms: 4
Bathrooms: 1 Full | 2 Half | 3 One Quarter
Living Area: 2131.47sf
Property Type: Condo
Status: Active
Reference ID: 86437701

What's Nearby

Local businesses near Paris, France:

Gym: < 1 mile
Grocery/Shopping Center: < 1 mile
School: < 1 mile
Hospital: < 1 mile
Public Transportation: < 1 mile
Police Station: < 1 mile

Map