Expansive Split Foyer Ranch with Entertaining Basement Setup

USD $325,000
1000 Peach Lane, New Baden, Illinois, 62265, USA

Property Highlights

  • 11' vaulted ceiling in living room
  • Gas fireplace
  • Kitchen island with sink and seating
  • Primary suite with garden tub and dual sinks
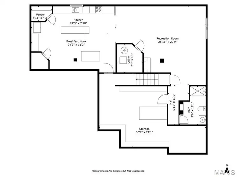
  • Basement with second full kitchen and pantry
  • 2-car attached garage and covered porches

Overview

Welcome home is what you will feel at this 3 bed & 3 bath split foyer ranch in Caylin Ridge Estates. This house has tastefully added quite a bit more sq ft in the basement since the last time it was on the market. Walking through the front foyer you are welcomed to an open floor plan for the main level common areas. 11' vaulted ceiling in living room, gas fireplace, kitchen island w/sink & seating, open stairway to basement, plus the back patio door, makes this the place to be for everyday living! The primary suite has a 6x7 well organized WIC, separate garden tub from the shower, & dual sinks. The 2nd & 3rd bedrooms share the second main level full bath. The basement is set up for entertainment with a 2nd full kitchen with a fixed island, an island on wheels, & it even has its own 4x4 pantry. This floor also features a family room area, another bath with shower only, & a well planned storage area for all of your treasures. Outside the living space you get 2 car attached garage, covered front porch, covered back porch, open back patio, 10x12 shed w/electric, plus plenty of beautiful landscaping. Showings start on June 21st at the public open house.
Show More Show Less

Property Features

1000 Peach Lane, New Baden, Illinois, 62265, USA offers the following features:

Bedrooms: 3
Bathrooms: 3 Full
Living Area: 1740sf
Property Type: Single Family
Status: Pending
Reference ID: 25040655

What's Nearby

Local businesses near 1000 Peach Lane, New Baden, Illinois, 62265, USA:

School: < 1 mile
Hospital: < 1 mile
Police Station: < 1 mile
Grocery/Shopping Center: 1.1 miles
Gym: 4.4 miles
Public Transportation: 6.6 miles

Map