Remodeled Home Near Robert Trent Jones Golf Course

USD $425,000
7010 Inverness Court, Mobile, Alabama, 36618, USA

Property Highlights

  • Remodeled kitchen with modern appliances
  • Open floor plan with natural light
  • Fenced backyard with covered patio
  • Primary suite with luxury en-suite bath
  • EV-ready double garage with outlet
  • Durable laminate flooring in main areas

Overview

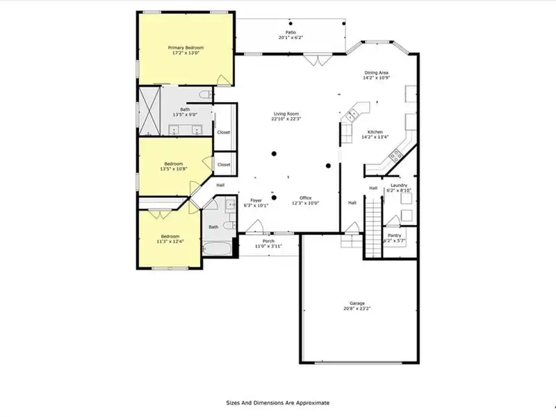
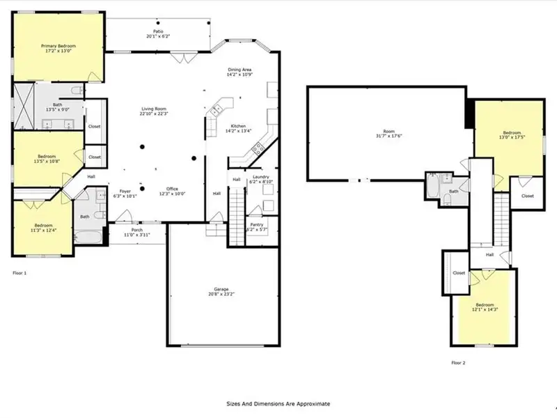
Welcome to this beautifully remodeled 5-bedroom, 3-bathroom home in The Legends atMagnolia Grove subdivision, just moments from the Robert Trent Jones Magnolia GroveGolf Course. Nestled on a quiet cul-de-sac, this home offers numerous custom updatesand an inviting open floor plan. The foyer, formal dining room, living area, kitchen, andbreakfast room seamlessly connect, creating a spacious and functional layout. Durablelaminate flooring runs throughout the main living areas, with carpet reserved for thebedrooms. The kitchen, upgraded in 2022, boasts modern appliances, ample cabinet anddrawer storage, generous counter space, and a breakfast bar that opens to the living andbreakfast rooms. The breakfast room is filled with natural light, thanks to windowsoverlooking the fenced backyard and covered patio. The primary suite, located on the mainlevel, is a true retreat. Its en-suite bathroom features an oversized walk-in shower withdouble rain shower heads and body jets, a double-sink vanity with LED waterfall faucets, anLED vanity mirror with a built-in defogger, and a touchless flushing toilet. Two additionalbedrooms and a full bathroom are located on the main level. Upstairs, youll find the fourthand fifth bedrooms, a third full bathroom, and a large unfinished area with excellentpotential for additional living space. The front-facing double garage is EV-ready, equippedwith the necessary outlet for your electric vehicle. Additional thoughtful updates includewashable wall paint, Leaf Filter gutters, and more. There is a covered back patio thatoverlooks the backyard. Call today to schedule your appointment and make this homeyour New Beginning! Buyer responsible for verifying all measurements and relevant details.
Show More Show Less

Property Features

7010 Inverness Court, Mobile, Alabama, 36618, USA offers the following features:

Bedrooms: 5
Bathrooms: 3 Full
Living Area: 2819sf
Property Type: Residential
Status: Active
Reference ID: 7498283

Map