Panoramic Terrace Apartment Near Citylife in Milan

EUR €1,650,000 (USD $1,922,427) *current conversion
Milano, Lombardia, 20149, Italy

Property Highlights

  • Panoramic terrace with city views
  • Large bright living room
  • Two-level apartment with attic floor
  • Habitable kitchen and studio bedroom
  • Centralized heating and concierge service
  • Close to Citylife and public transport

Overview

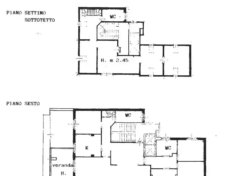
gv1352 - BARE OWNERSHIP Via Mosè Bianchi - A few steps from Citylife BARE OWNERSHIP with panoramoc terraces and large bright spaces. This extraordinary apartment of 300sqm of commercial surface is proposed for sale on BARE OWNERSHIP, is developed onto two levels, the 6th and 7th floor of a stately building in one of the most wanted areas of Milan. The 6th floor of 168sqm is composed of a large entrance that leads immediately to the bright living room overlooking the wide panoramic and angular 124sqm terrace with a pleasant view of Milan, enriched by a bright 20sqm porch. An hallway leads to the habitable kitchen and the studio bedroom. In front of it there is a large windowed bathroom. The night area is located on the other side of the house and has two bedrooms, one of which is really big, both served by a second windowed bathroom. The internal staircase next to the kitchen leads on the 7th attic floor of 85sqm, also with its independent entrance that includes three more rooms illuminated by skylights and a windowed bathroom. Completes the property a cellar on the basement floor. The apartment has centralized heating, double lifts and concierge service. It is possible to buy a single parking spot nearby Via Carcano for € 50.000. Located between Monterosa and Citylife, the location combines elegance, modernity and services. The proximity to Citylife offers access to one of the most innovative neighbourhoods of Milan, full of luxury boutiques, restaurants and green spaces. The Monterosa area, instead, gives tranquillity and a residential environment. The area is perfectly served by public transport. The subway lines M1 (Amendola and Lotto) and M5 (Lotto and San Siro Stadium) ensure rapid links to the city center and other strategic areas, besides of different buses and trams nearby, making the apartment perfect for those who desire to move without the car. Class G – ipe 246,72. € 1.650.000 - € 14.000,00 annual condo fees. The choice of this property contributes to support the mission of Theodora onlus. Photos, texts, floor plans, etc., are purely for illustrative purposes and do not constitute documents with contractual value and presupposition. Giorgio Viganò Real Estate - 027636151 - www.giorgiovigano.com
Show More Show Less

Property Features

Milano, Lombardia, 20149, Italy offers the following features:

Bedrooms: 6
Bathrooms: 3 Full
Living Area: 3229.17sf
Property Type: Condo
Status: Active
Reference ID: 85957992

What's Nearby

Local businesses near Milano, Lombardia, 20149, Italy:

School: < 1 mile
Gym: < 1 mile
Hospital: < 1 mile
Grocery/Shopping Center: < 1 mile
Public Transportation: < 1 mile
Police Station: < 1 mile

Map