Custom Built Home with Pool and Entertaining Patio

Price Upon Request
30 William Edward Street, Longueville, NSW, 2066, Australia

Property Highlights

  • Blended indoor/outdoor living with covered patio
  • Saltwater pool with heat pump and firepit
  • Caesarstone kitchen with gas cooking
  • Ducted reverse cycle air conditioning
  • Auto double garage with lane access
  • Close to park, playground, tennis club, shops

Overview

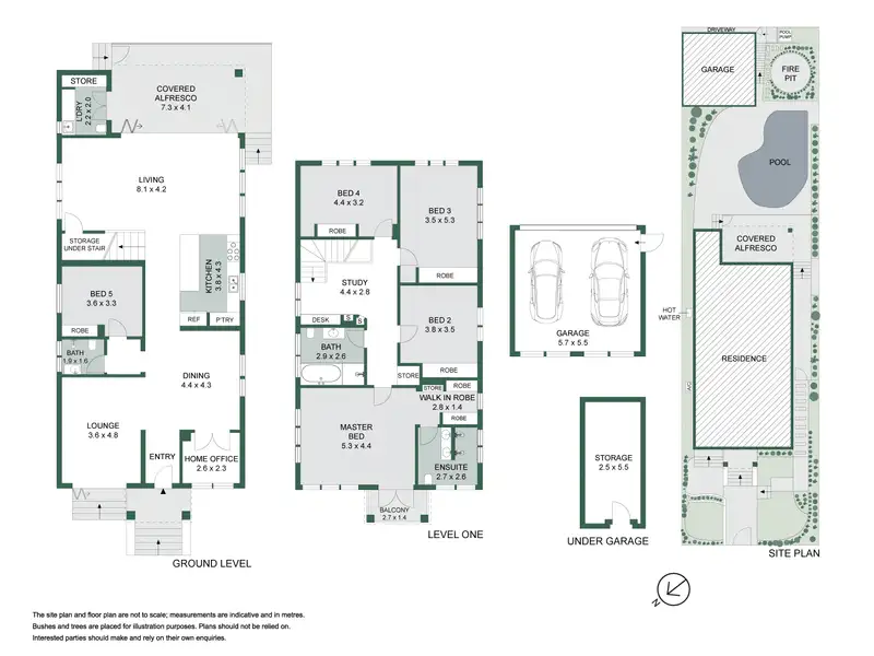
Custom built and selling for the very first time, this double storey home has many special qualities and offers blended indoor/outdoor living, entertaining ease and convenience in a prestigious neighbourhood. Flowing interiors feature superb functionality with wide windows capturing generous natural light and elevated leafy views, while a cul-de-sac laneway at the rear provides access to double garaging and a pedestrian shortcut through to Lane Cove Tennis Club, 'The Diddy', and village shops and buses on Northwood Road. Footsteps from a playground and Warraroon Reserve walking trails on the nearest corner, the home is impeccably presented and readymade for a growing family. - High ceilings, ducted r/c air con, gas bayonets and spotted gum floors - Bi-fold glass doors open to a covered patio for entertaining at the rear - Saltwater pool with heat pump and equipment room plus a firepit area - Spacious formal and casual living/dining zones, home office and study - Caesarstone kitchen w/ island bench, quality appliances, gas cooking - Five bedrooms including one on ground floor with adjacent bathroom - Upstairs master with built-ins, ensuite and a Jacaranda-view balcony - Main bathroom including a bath, near-poolside laundry/powder room - Easycare gardens feature sandstone, limestone and travertine paving - Auto double garage with rear lane access, separate pedestrian gate
Show More Show Less

Property Features

30 William Edward Street, Longueville, NSW, 2066, Australia offers the following features:

Bedrooms: 5
Bathrooms: 3 Full
Property Type: residential
Status: Active
Reference ID: 222P614935

What's Nearby

Local businesses near 30 William Edward Street, Longueville, NSW, 2066, Australia:

School: < 1 mile
Hospital: < 1 mile
Public Transportation: < 1 mile
Gym: < 1 mile
Grocery/Shopping Center: < 1 mile
Police Station: 2.1 miles

Map

The Local Vibe