Architecturally Designed Family Home in Tranquil Cul-de-sac

Price Upon Request
13 Delta Road, Lane Cove, NSW, 2066, Australia

Property Highlights

  • Quiet cul-de-sac location
  • Large 720sqm family-friendly lot
  • Gourmet gas kitchen with stone island
  • Multiple balconies and terraces
  • Soaring vaulted ceilings with natural light
  • Double carport and air conditioning

Overview

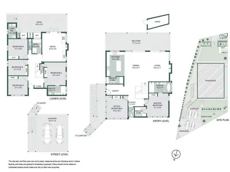
Ideally set at the end of a quiet cul-de-sac, this architecturally designed residence presents spacious family living on approx 720sqm, ideal for multigenerational families and entertainers. With two floors of living spaces and dual home entry, this large home boasts generous entertaining balconies, terraces, and lounges, all surrounded by nature with enviable privacy. The interiors with soaring vaulted ceilings and glass feature windows allow a continuous flow of natural light and air, all in an enviable position only metres to the Lane Cove Golf Course and a short stroll to village shops and aquatic centre. - Expansive living and dining floor with soaring vaulted ceilings, gas fire - Gourmet gas kitchen with stone island, Vintec fridge, walk-in pantry - Main floor with optional guest bedroom/home office, master with luxury ensuite and windowfront tub - Four bedrooms on lower floor with second master ensuite, casual lounge - Multiple lounge and entertaining spaces, private putting green, firepit - Timber floors, air conditioning, guest powder room, double carport - External laundry with powder room, main bathroom with spa bath Auction commences 6.00pm at Belle Property Head Office 2A Phoenix Street, Lane Cove NSW 2066 Registrations from 5.30pm
Show More Show Less

Property Features

13 Delta Road, Lane Cove, NSW, 2066, Australia offers the following features:

Bedrooms: 5
Bathrooms: 3 Full
Property Type: residential
Status: Active
Reference ID: 222P591582

What's Nearby

Local businesses near 13 Delta Road, Lane Cove, NSW, 2066, Australia:

School: < 1 mile
Hospital: < 1 mile
Public Transportation: < 1 mile
Gym: < 1 mile
Grocery/Shopping Center: < 1 mile
Police Station: 1.8 miles

Map

The Local Vibe