Modern Home in Exclusive Rainier Plateau Community

USD $799,950
3215 219th Avenue East, Auburn, Washington, 98092, USA

Property Highlights

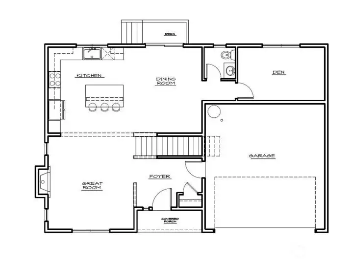
  • Chef-inspired kitchen with large island
  • Open family and dining rooms
  • Spacious main-floor den and half bath
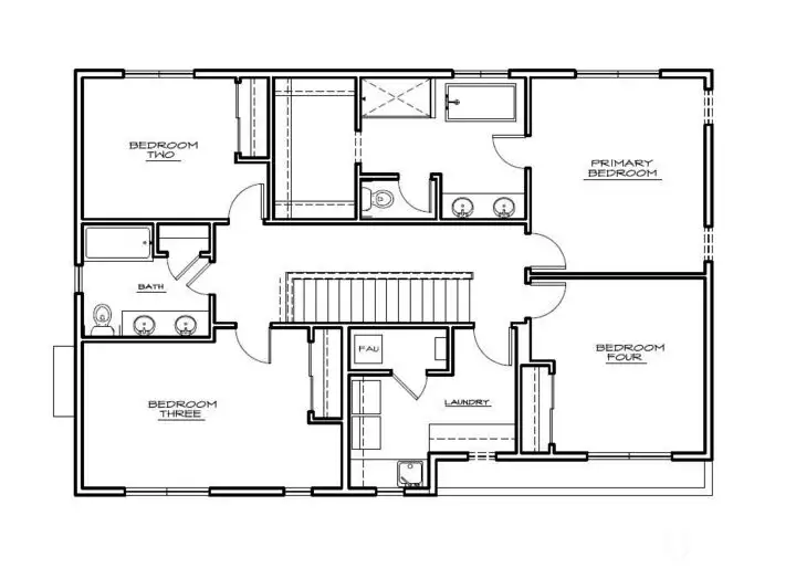
  • Private primary suite with elegant finishes
  • Located near Lake Tapps and shopping
  • In top-rated Dieringer School District

Overview

Welcome to Rainier Plateau, a 10-home new construction community designed for modern Northwest living. This thoughtfully crafted 2,213A sq ft home blends style & function w/ a chef-inspired kitchen featuring a large island & seamless flow to family & dining rooms, creating a bright & connected gathering space. A spacious main-floor den & 1/2 bath offer flexibility for guests, work, or play. Upstairs includes 4 bedrooms & 2 bathrooms, including a private primary suite w/ elegant finishes, Set against a lush greenbelt with Foothill views and located in the top-rated Dieringer School District, just minutes from Lake Tapps, shopping, and dining. Buyer Bonus when using Preferred lender & time to personalize your finishes and colors!
Show More Show Less

Property Features

3215 219th Avenue East, Auburn, Washington, 98092, USA offers the following features:

Bedrooms: 4
Bathrooms: 2 Full | 1 Half
Living Area: 2213sf
Property Type: Residential
Status: Active
Reference ID: 2457533

Map