Da-approved Development Site in Prime Kogarah Bay Location

Price Upon Request
206 Princes Highway, Kogarah Bay, NSW, 2217, Australia

Property Highlights

  • North-facing aspect with wide frontage
  • DA-approved site for development
  • Two kitchens for dual living options
  • Bus stop at doorstep, easy transport
  • Amenities nearby: ALDI, gym, childcare
  • Close to Kogarah Station and Westfield

Overview

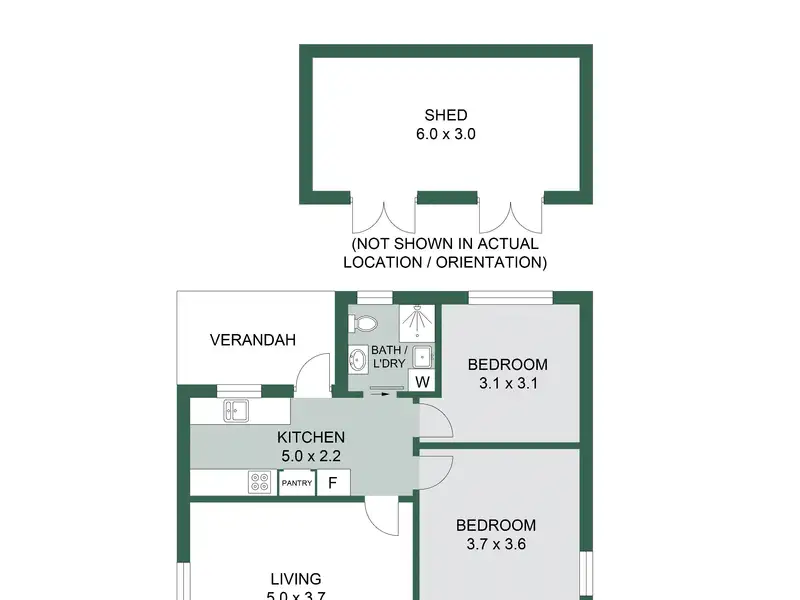
Positioned in one of St George's most coveted bayside suburbs, 206 Princes Highway, Kogarah Bay presents an exceptional opportunity for developers, investors, or families seeking to capitalise on a DA-approved site with limitless potential. This rare property combines a prime north-facing aspect, generous frontage, and supreme convenience, ensuring a project that's both visually striking and highly saleable. Thoughtfully designed to maximise natural light and street appeal, the existing DA approval showcases a sophisticated development opportunity, while the current home offers versatility with two fully equipped kitchens, ideal for dual living, extended families, or as an immediate investment with dual-income potential. Perfectly located for connectivity and lifestyle, the site enjoys a government bus stop at the doorstep with direct routes to Kogarah Station and Miranda Westfield, while ALDI, a gymnasium, and childcare facilities sit directly across the road, making this address a standout for both residents and developers alike. Key Features: • Current DA-approved rezoned R4 and further future potential of high rise apartments and has currently 2 titles for dual occupancy • Dominant north-facing aspect with wide frontage and striking street presence • Two kitchens, ideal for dual living or multi-occupancy investment • Scope to develop, invest, or create a luxury duplex (STCA) • Strong local amenities: ALDI, gym, and childcare directly opposite • Bus stop at the doorstep with frequent routes to Kogarah Station & Hurstville Westfield and 2.9km to Ramsgate Beach and close to Sydney Airport • Set within a highly sought-after bayside enclave surrounded by quality homes With its prime position, versatile design, and DA approval already in place, 206 Princes Highway represents an unparalleled opportunity to secure a slice of Kogarah Bay's prestige market. Whether you choose to develop, invest, or build your dream duplex, this property promises strong growth, lifestyle appeal, and a legacy position in one of St George's most desirable pockets.
Show More Show Less

Property Features

206 Princes Highway, Kogarah Bay, NSW, 2217, Australia offers the following features:

Bedrooms: 5
Bathrooms: 2 Full
Property Type: residential
Status: Active
Reference ID: 222P614830

What's Nearby

Local businesses near 206 Princes Highway, Kogarah Bay, NSW, 2217, Australia:

School: < 1 mile
Gym: < 1 mile
Grocery/Shopping Center: < 1 mile
Public Transportation: < 1 mile
Hospital: < 1 mile
Police Station: 1.4 miles

Map

The Local Vibe