Historic Greek Revival Farmhouse on Private Acreage

USD $2,795,000
433 Rapp Road North, Valatie, New York, 12184, USA

Property Highlights

  • Historic Greek Revival farmhouse built in 1740s
  • Modern architectural addition by John Messick
  • Light-filled great room with fireplace and views
  • Pool with stone terraces and reclaimed pond
  • Restored wide plank floors and hand-hewn beams
  • Surrounded by over eight private acres and farmland

Overview

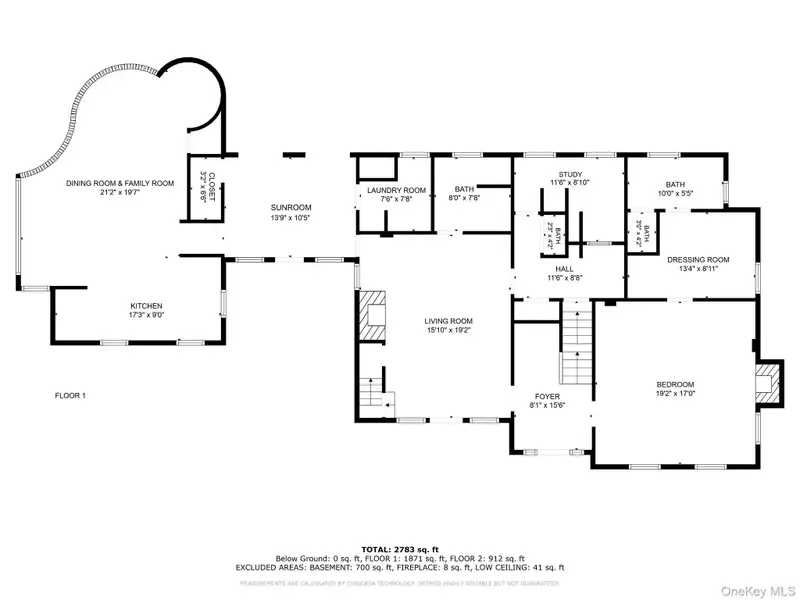
Welcome to Hardwicke Farmhouse. Set on more than eight private acres along a quiet country road, this exceptional Greek Revival farmhouse tells the story of nearly three centuries of Columbia County history. The original structure dates to the 1740s, with a gracious Greek Revival center hall added in the 1840s. Its striking mid-20th-century modern addition was designed by world-renowned architect John Messick, a founding partner of MCWB Architects and contemporary visionary with I. M. Pei. His work reimagined the property with bold architectural lines and a silo-inspired great room that fills the home with light and offers bucolic far-reaching views of the surrounding farmland.Inside, the historic rooms feel intimate and grounded. Hand-hewn beams, wide plank floors, restored hardware, and Dutch doors reflect the homes early roots. Morning light drifts through the front parlor and dining room, both anchored by wood-burning fireplaces. Beyond these rooms, the architectural addition opens into a dramatic great room with an inglenook fireplace and sweeping views of the pool, barns, and fields. The kitchen and dining area share this airy, modern space, creating a natural flow for long meals, gatherings, and quiet mornings observing each seasons simple, natural charm. Three en suite bedrooms include a spacious first floor primary suite with its own fireplace, a large dressing room, and views across the property. The home offers gracious gathering spaces and quiet corners to escape to with a book or cup of tea. Additional rooms throughout the home offer flexibility for offices, studios, or guests. Outdoors, the landscape includes remnants of the old apple orchard, newly planted trees and gardens, and open fields and wildflower meadows. A reclaimed adjacent pond, fed by two freshwater springs, sits beside the pool and stone terraces, and weathered barns add authentic rural character. The residence is surrounded by 600 acres of farmland, offering beautiful uninterrupted pastoral views. The property has undergone extensive renovations and thoughtful improvements, including a new metal roof and significant updates across both the interior and landscape. Kinderhook, Chatham, and Hudson are all within easy reach, and Albany International Airport is about thirty minutes away, making travel surprisingly simple. Daily life here is shaped by quiet countryside, nearby farms, local dining, and easy access to the best of the Hudson Valley.
Show More Show Less

Property Features

433 Rapp Road North, Valatie, New York, 12184, USA offers the following features:

Bedrooms: 3
Bathrooms: 2 Full
Living Area: 2800sf
Property Type: Residential
Status: Active
Reference ID: 936166

Map