Double Block with Original Home Ready for Renovation

Price Upon Request
70 Pacific Highway, Jewells, NSW, 2280, Australia

Property Highlights

  • Double block totaling 1138sqm
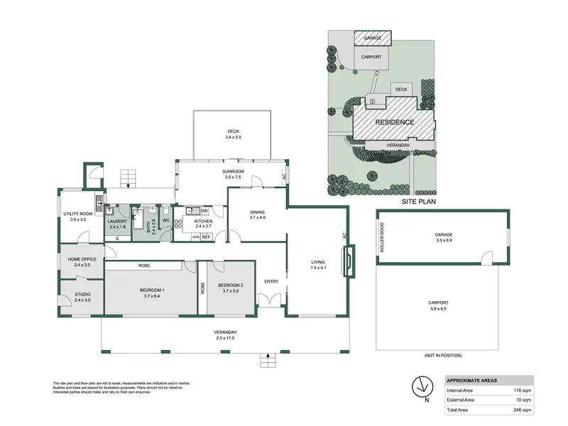
  • Flexible floorplan with studio and office
  • Sandstone fireplace adds character
  • Kitchen with stainless oven and dishwasher
  • Single garage plus double carport parking
  • Close to beaches, shops, schools, and trails

Overview

For those who thrive on possibility, this brimming-with-potential classic sits in a location that will reward every ounce of effort. Set on a double block, it's an untouched time capsule offering the kind of blank slate today's creators dream about - retain and reinvent what's here, or clear the decks entirely and start fresh. Inside you'll find a jumble of spaces begging for reinvention: two main bedrooms, a studio zone, home office, sunroom and utility room, plus connected living and dining areas anchored by a sandstone fireplace. The kitchen is neatly presented and will easily get you through the planning phase while you map out your vision. Young couples wanting an affordable project, builders seeking their next standout transformation, or seasoned renovators itching for a challenge will see the upside immediately: schools, shops, beaches, bush trails and the lake are all moments away, ensuring strong lifestyle appeal once complete. - Block One 575.4sqm, Block Two 562.8sqm - Original 2-bed/1-bath home on a wide double 1138.2sqm block waiting for reinvention - Option to renovate, extend or knock down and design a contemporary new build - Flexible floorplan with bedrooms plus studio, office, sunroom and utility room - Good kitchen with stainless steel oven and dishwasher to support renovation works - Sandstone fireplace, rear deck and built-in robes offer character and reuse potential - Near Jewellstown Plaza, Tavern, public school and a local medical centre - Minutes to Blacksmiths Beach, 4WD tracks, bushland walks, Belmont CBD and the lake We have obtained all information used in the preparation of this document from third party sources however, we cannot guarantee the accuracy or currency of this information. Prospective purchasers and their advisors are advised to carry out and rely on their own enquiries and investigations in relation to the information in this document and the property it concerns.
Show More Show Less

Property Features

70 Pacific Highway, Jewells, NSW, 2280, Australia offers the following features:

Bedrooms: 2
Bathrooms: 1 Full
Property Type: residential
Status: Active
Reference ID: 222P611873

Map