Panoramic Sea View Villa with Expansive Fenced Park

EUR €1,580,000 (USD $1,841,642) *current conversion
San Costanzo, Italy

Property Highlights

  • 5-minute walk to Adriatic Sea
  • Panoramic sea, mountain views
  • Large fenced 5,000sqm park
  • Renovated farmhouse with original materials
  • Heated pool with whirlpool seats
  • Garage with electric car charging station

Overview

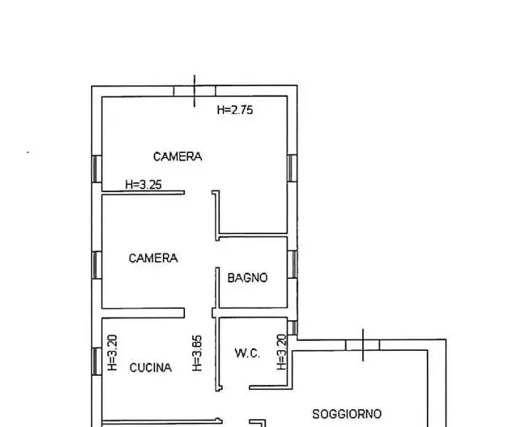
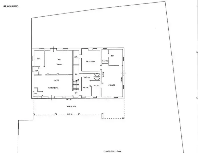
San Costanzo (PU) 5 minutes from the Adriatic Sea, in a dominant position on the first hill with panoramic views of the Adriatic Sea, Mount Conero and the Gulf of Ancona, easily accessible and well connected to the main roads. We offer for sale villa of 478sqm divided into two units, surrounded by a fenced park of over 5,000sqm with spectacular sea views. The property is composed of two contiguous real estate units: The Farmhouse of 383sqm arranged on two floors, completely renovated in 1998 in a workmanlike manner preserving in the main body the original materials and with the subsequent integral renovation of the part facing the sea in the recent 2022. On the ground floor we find a pleasant open space with w.c., a large kitchen area with dining table, a cozy living room, a contiguous large well-lit warehouse (communicating with the living area, there is the possibility to expand it or to divide it into other rooms), a second non-habitable kitchen equipped with scullery and a small cool cellar, an extended living room with living room, a ceramic fireplace, two rooms with bathroom, completes the plan a large porch overlooking the sea of 75sqm partly closed with large sliding glass windows. On the second floor we find a bright full-height hallway with exposed beams and finely sandblasted tiles from which there is access to the four bedrooms with three bathrooms, a hobby room arranged for a kitchenette and a large fifth bedroom with bathroom, equipped with an additional access to the ground floor via a discreet spiral staircase. "The design idea was to create functional rooms for possible change of needs over time." Attached on the left side of the farmhouse, we find a newly built (2014) 95sqm cottage consisting of open-space living area with access to the open space, two double bedrooms, study, windowed storage room and two bathrooms. Overall, the property outside counts several porches (newly built), 4 comfortable large tables, 4 outdoor lounges, 5 hammocks, 11 sun loungers and some smoking tables. The property is surrounded by a fenced park of more than 5,000sqm studied in every detail, with 50 olive trees, rainwater collection for 50,000 Liters and perimeter system of capture of collected water usable for irrigation. The lawn in the pool area has an automatic irrigation system. The central part of the park in front of the house welcomes a large brick porch of 75sqm with open kitchen contiguous to the pool with whirlpool seats and waterfall, below we find a large garage of 95sqm with laundry. There are two car parking areas one located at the entrance of the property that accommodates several cars, three of which are covered and with a charging station for electric cars and a second shaded one in front of the garage access. In the back of the house a nice tool shed adjoining the small area dedicated to the house vegetables with attached shade structure and water storage. The property has been renovated to a high standard. Structurally: piles were made for all structures as foundation, consolidated the main structure and roof of the main body to maintain the style and materials. New water system connected to the municipal line. New electrical system, Heating with heat pump (hot/cold) connected to an 18KW Photovoltaic system with 48KW storage batteries, solar thermal for domestic hot water with 400l storage. New sewage system, connected to the municipal sewer. Pool and Garage newly built 2016 (again with pile foundations). Included in the sale much of the interior and exterior furniture and equipment for conducting outdoor spaces. If you are looking for a dream sea view, a villa ready to live in, a unique and elegant solution, prepared to be adapted to your present and future needs, you are in the right place! Request 1,580,000€. "APE A1" IPE: 77.36 kwh/sqm/year
Show More Show Less

Property Features

San Costanzo, Italy offers the following features:

Bedrooms: 12
Bathrooms: 10 Full
Living Area: 5145.15sf
Property Type: Single Family
Status: Active
Reference ID: 85998371

What's Nearby

Local businesses near San Costanzo, Italy:

Grocery/Shopping Center: < 1 mile
Public Transportation: < 1 mile
School: < 1 mile
Police Station: < 1 mile
Gym: 2.2 miles
Hospital: 3.4 miles

Map