Contemporary Design with Expansive Entertainment Spaces in Cherry Hills

USD $2,950,000
43 Cherry Hills Farm Drive, Englewood, Colorado, 80113, USA

Property Highlights

  • 3/4 acre lot in Cherry Hills Farm
  • Two-story Great Room with fireplace
  • Formal dining with coffered ceiling
  • Kitchen with large island and stainless appliances
  • Finished basement with media, game room, and wet bar
  • Indoor exercise pool and specialty sauna room

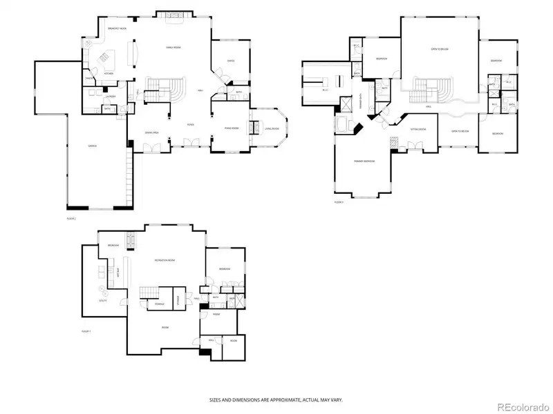
Overview

Welcome to this wonderful property in the coveted Cherry Hills Farm, a 3/4 acre site at the Southeast corner of the development. Traditional looking from the exterior with some wonderful contemporary interior design elements. The grand entry area opens to a eye popping two story Great Room, perfect for gathering & entertaining. Flanking the left of the entry is the formal dining room with coffered ceiling and butler's pantry. Going the south direction is a perfect music room with room for a grand piano and connected to a step down cozy conversation Kiva with an inviting fireplace. The kitchen has a large center island, working counter, breakfast room and all newer stainless appliances. Additionally on the main floor is a nice home office and luxurious powder room, laundry & 2nd half bath. The double sided staircase leads up to the four upper bedrooms all with ensuite baths. The large primary suite features vaulted ceilings, a see-through fireplace to a calming sitting area. The primary bath has a soaking tub, large shower and a double walk-in closet. The finished basement offers an open media & game room with an electric fireplace & wet bar. There is a gym area which is currently a space for ping pong and air hockey. There is a specialty sauna room devoted to the art of Himalayan Sea Salt and an indoor exercise pool. The is also a fifth bedroom and 3/4 bathroom. Experience the blend of classic design and contemporary living in this exceptional home, ready for your new personal touches & updating.
Show More Show Less

Property Features

43 Cherry Hills Farm Drive, Englewood, Colorado, 80113, USA offers the following features:

Bedrooms: 5
Bathrooms: 3 Full | 2 Half
Living Area: 6405sf
Property Type: Residential
Status: Active
Reference ID: 2981949

Map