Spacious Home with Modern Amenities and Flexible Layout

USD $695,000
2434 South Williams Street, Denver, Colorado, 80210, USA

Property Highlights

  • Cook's kitchen with large family/dining room
  • Large front room with French doors
  • Attached 2-car garage with built-in storage
  • Luxurious primary suite with dual walk-ins
  • Primary suite includes five-piece bath
  • Close to I-25 and University of Denver

Overview

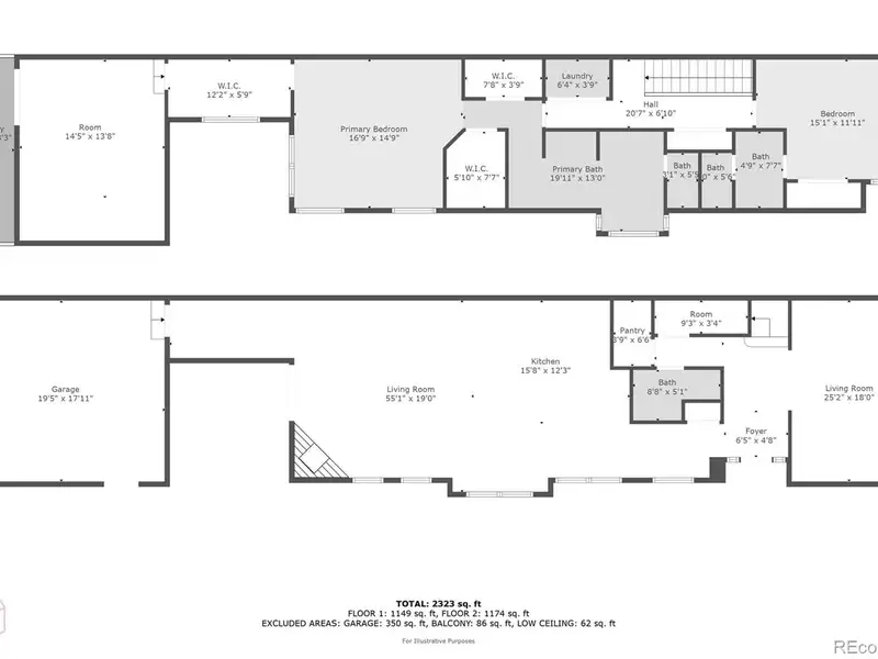
This spacious home offers a thoughtfully designed layout perfect for modern living. The cook's kitchen and the large family/dining room with deck access provides great entertaining space. Options abound for the large front room - could be a nice formal dining room or additional living room space, complete with two sets of French doors opening onto the front patio. Ample built-in storage and additional countertop space upon entry from the attached 2-car garage. Upstairs, the luxurious primary suite has a five-piece bath, huge dual custom walk-in closets, and an adjoining office or extra storage space with built-ins. A second bedroom with vaulted ceilings and its own en-suite bathroom sits at the opposite end, providing privacy. The third non-conforming bedroom off of the primary could also serve as versatile bonus room perfect for an office or den, nursery, or home gym. Close to I-25, the University of Denver, Porter Hospital, Denver Beer Co, and many other restaurants and shops.
Show More Show Less

Property Features

2434 South Williams Street, Denver, Colorado, 80210, USA offers the following features:

Bedrooms: 3
Bathrooms: 2 Full
Living Area: 2561sf
Property Type: Residential
Status: Active
Reference ID: 5851799

Map