Charming Historic Home Near Downtown with Adu

USD $435,000
313 North 7th Street, Colorado Springs, Colorado, 80905, USA

Property Highlights

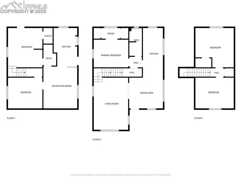
  • Historic 1890s home with 2,008 sq. ft.
  • Main floor master bedroom for convenience
  • Includes fully integrated ADU with private entrance
  • Peaceful garden area ideal for relaxation
  • Located near Downtown and Old Colorado City
  • End lot offering privacy and seclusion

Overview

Historic Gem with ADU & Unmatched Potential - Step back in time and own a piece of the city's soul with this enchanting 1890s home, lovingly cared for by the same owner for 48 years. Nestled on a secluded end lot, this 2,008 sq. ft. home offers a peaceful retreat just moments from the vibrant energy of Downtown and the historic charm of Old Colorado City. The main floor features the convenience of a master bedroom. For the savvy buyer or investor this is a prime opportunity to build substantial sweat equity. The lower level presents a fantastic investment opportunity with a fully integrated Accessory Dwelling Unit (ADU), complete with a full kitchen and a private, separate entrance. This is a perfect setup for generating significant rental income, "house-hacking" by living in one unit and renting the other, or creating a private in-law suite. Step outside into the wonderful garden area, a true urban oasis. For the visionary investor dreaming of even greater potential, a rare opportunity awaits. This property is a find for those with the vision to polish a historic diamond. Sold AS IS
Show More Show Less

Property Features

313 North 7th Street, Colorado Springs, Colorado, 80905, USA offers the following features:

Bedrooms: 4
Bathrooms: 2 Full
Living Area: 1971sf
Property Type: Residential
Status: Active
Reference ID: 9177391

Map