Custom Home with Great Layout in Boulder Community

USD $995,000
2736 Winding Trail Drive, Boulder, Colorado, 80304, USA

Property Highlights

  • Main-level primary suite
  • Bright sunroom and 3-season porch
  • Loft/office space
  • Wood-burning fireplace
  • Spacious partially finished basement
  • Direct access to scenic trail network

Overview

Custom home never before offered for sale in one of Boulder's most desirable neighborhoods! Spacious 4-bedroom, 3-bath home lovingly maintained by original owners. Solid construction and great bones-just needs cosmetic updates to truly shine and build instant equity! Perfect for rehabbers, or buyers looking to get into the Boulder market at a reasonable price. Ideal layout with main-level primary suite, bright sunroom, 3-season porch, loft/office, and cozy wood-burning fireplace. Partially finished basement with bedroom, 3/4 bath, and tons of storage. Brand-new furnace and A/C. Quiet street with ample parking and direct access to Boulder's scenic trail network. Enjoy community amenities including 2 pools, 3 tennis courts, open space, and one of the area's lowest HOAs. Low-maintenance yard with irrigation-don't spend weekends working in your yard; enjoy the nearby parks and walking paths instead! Free 1-point rate buy down available from preferred lender, Lauren Nygren. Reach out for more details!
Show More Show Less

Property Features

2736 Winding Trail Drive, Boulder, Colorado, 80304, USA offers the following features:

Bedrooms: 4
Bathrooms: 2 Full
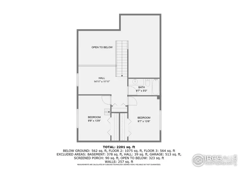
Living Area: 2748sf
Property Type: Single Family
Status: Active
Reference ID: 1044769

What's Nearby

Local businesses near 2736 Winding Trail Drive, Boulder, Colorado, 80304, USA:

Public Transportation: < 1 mile
School: < 1 mile
Gym: < 1 mile
Grocery/Shopping Center: < 1 mile
Hospital: 1 mile
Police Station: 1.6 miles

Map