Lakefront Property in Baveno with Renovation Potential

EUR €900,000 (USD $1,049,037) *current conversion
Baveno, Italy

Property Highlights

  • Lake Maggiore and Borromeo Islands view
  • Spacious 10,980 sqm park
  • Single-level villa layout
  • Renovation project for modern design
  • Expansive 160 sqm terraces
  • Views of Stresa bay and islands

Overview

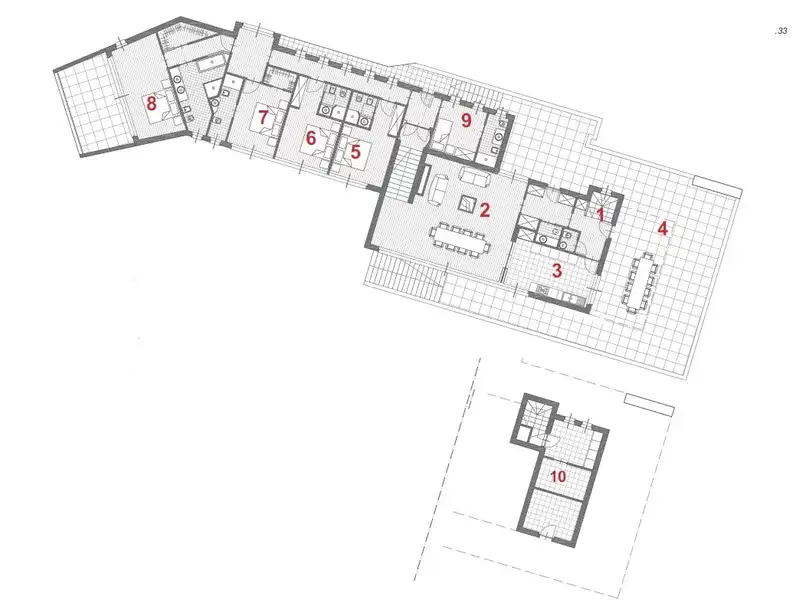
In a fascinating position in Baveno with a view on lake Maggiore and the Borromeo Islands, a great property with a villa to be restructured and park of 10.980 sqm. The villa is on a only level, and now composed by a living room, kitchen, four bedrooms and two bathrooms. It has been realized a project for the renovation and amplification that sees a modern villa with big windows and on two levels following the ground disposition. The villa will be of 252 sqm, 160 smq of terraces. The magnificent view over the Stresa bay and the Islands makes this property absolutely unique.
Show More Show Less

Property Features

Baveno, Italy offers the following features:

Bedrooms: 4
Bathrooms: 2 Full
Living Area: 1883.68sf
Property Type: Single Family
Status: Active
Reference ID: 2494148

Map