Newly Built Home with Gourmet Kitchen and Loft Space

USD $505,000
321 Summerville Lane, Athens, Georgia, 30606, USA

Property Highlights

  • Close to shopping, dining, and UGA campus
  • Traditional-style homes with welcoming porches
  • Rear garage included
  • Open concept kitchen and living space
  • Gourmet kitchen with quartz countertops
  • Spacious loft area for media or teen suite

Overview

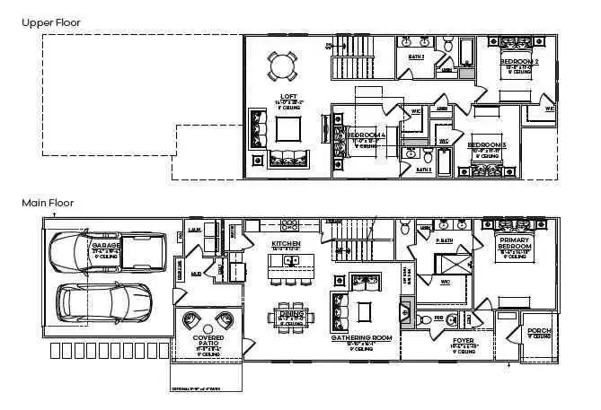
Welcome to Summerville, a charming new construction neighborhood located off of Jennings Mill Rd. $10,000 Buyer Incentive to be used however buyer needs - just minutes from shopping, dining, UGA Campus, and bustling downtown Athens. Traditionally-inspired, these watercolor homes echo the easy appeal of the coast with welcoming porches and rear garages. Step into our new Brooke floorplan and find yourself immersed in modern elegance. This spacious first floor is an entertainer's dream with an open concept kitchen, dining space,living space and the primary suite. This floor features high ceilings and plenty of natural light, as well as generous storage, a fireplace, a mudroom, and a powder room. Your gourmet kitchen is a chef's dream with quartz countertops, stainless steel appliances, a gas cooktop, a walk-in pantry, and an oversized kitchen island. Upstairs you will find a spacious loft area perfect for a teen suite or a media space, down the hall are three bedrooms, and two full baths. With ample space and storage throughout, these new builds will not last long! Tour today to find your little piece of paradise. *construction photos*
Show More Show Less

Property Features

321 Summerville Lane, Athens, Georgia, 30606, USA offers the following features:

Bedrooms: 4
Bathrooms: 3 Full | 1 Half
Living Area: 2101sf
Property Type: Residential
Status: Active
Reference ID: 7657879

What's Nearby

Local businesses near 321 Summerville Lane, Athens, Georgia, 30606, USA:

Grocery/Shopping Center: < 1 mile
Public Transportation: < 1 mile
Gym: < 1 mile
Hospital: < 1 mile
Police Station: < 1 mile
School: 1.1 miles

Map