Modern Home with Main Floor Primary Suite Near Downtown Zeeland

USD $534,900
2735 Reagan Avenue #2735, Zeeland, Michigan, 49464, USA

Property Highlights

  • Near Downtown Zeeland location
  • Main floor primary suite with walk-in closet
  • Gas fireplace with built-in shelves
  • Open concept kitchen with large pantry
  • Main floor laundry with built-in counter
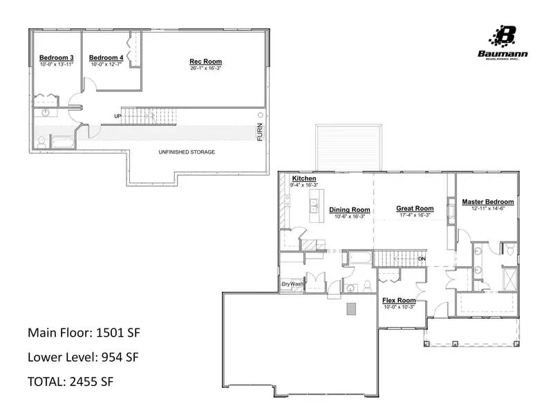
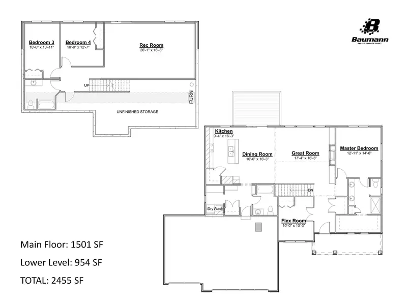
  • Walk-out lower level with rec room

Overview

Are you looking for a home right near the heart of Downtown Zeeland? Patriot Meadows is just the place for you! This ''Thornapple'' floor plan has 4 beds and 3 baths. The main floor primary suite has a spacious walk-in closet. You'll find a gas fireplace with built in shelves and a cathedral ceiling in the living room, and a large pantry in the open concept kitchen. You will also find the laundry room with a built in counter on the main floor for your convenience. On the lower level you will find a spacious rec room, 2 bedrooms, and a full bathroom in a walk out lower level.
Show More Show Less

Property Features

2735 Reagan Avenue #2735, Zeeland, Michigan, 49464, USA offers the following features:

Bedrooms: 4
Bathrooms: 3 Full
Living Area: 1501sf
Property Type: SingleFamily
Status: Active
Reference ID: 25047394

What's Nearby

Local businesses near 2735 Reagan Avenue #2735, Zeeland, Michigan, 49464, USA:

School: < 1 mile
Gym: < 1 mile
Grocery/Shopping Center: < 1 mile
Public Transportation: < 1 mile
Police Station: < 1 mile
Hospital: < 1 mile

Map