Modern Coastal Escape Near Cape Neddick Beach

USD $1,649,000
1 Josiah Norton Road, York, Maine, 03902, USA

Property Highlights

  • Minutes from Cape Neddick Beach
  • Open-concept layout with natural light
  • Expansive covered deck for outdoor living
  • Main-level primary with spa-like ensuite
  • Cozy gas fireplace with custom built-ins
  • Walk-out basement with additional living space

Overview

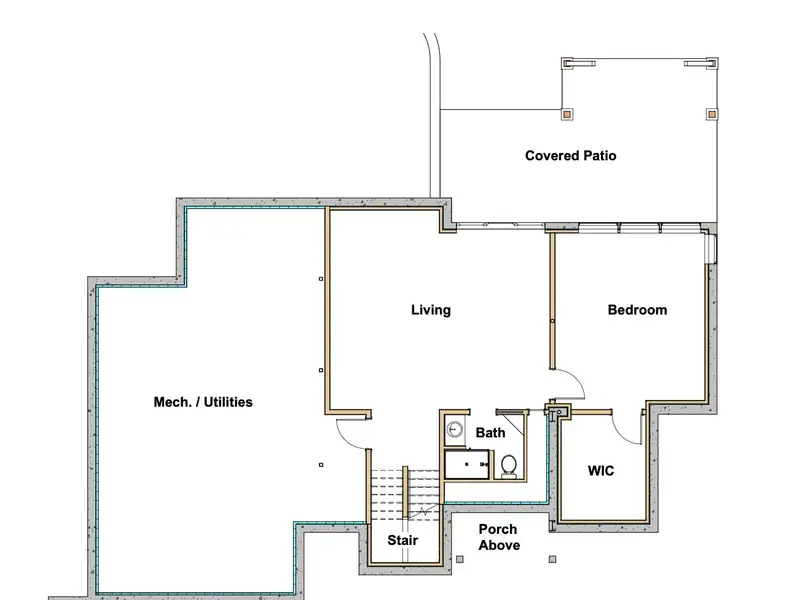
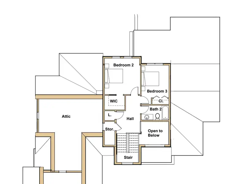
Located minutes from beautiful Cape Neddick Beach, this new construction 4-bedroom 4-bathroom modern coastal escape is a rare opportunity to own a thoughtfully built and professionally designed property in desirable York, Maine. Designed with modern coastal living in mind, the 4300 sq ft home features an open-concept layout flooded with natural light, thanks to expansive floor-to-ceiling windows in the Great Room. 20 ft at its peak, this room has a cozy gas fireplace, and custom built-ins. The main level is ideal for entertaining with seamless indoor/outdoor living, offering an expansive covered deck, a spacious kitchen with over-sized island, dining, and living area, 10 ft ceilings, and a cozy yet sophisticated atmosphere throughout. The first-floor primary offers a spa-like ensuite, free standing tub, walk-in closet and upscale finishes. Also included on the main level, an office, laundry and mudroom, and two-level foyer. Upstairs are two bedrooms and a full bath with hardwood floors and tall ceilings. Downstairs, a walk-out basement has a bedroom with walk-in closet, large second living room, and full bathroom. No detail has been overlooked. This is an opportunity that doesn't come around often! Enjoy all that Southern Maine has to offer, where luxury meets nature.
Show More Show Less

Property Features

1 Josiah Norton Road, York, Maine, 03902, USA offers the following features:

Bedrooms: 4
Bathrooms: 3 Full | 1 Half
Living Area: 4300sf
Property Type: Residential
Status: Active
Reference ID: 1637584

What's Nearby

Local businesses near 1 Josiah Norton Road, York, Maine, 03902, USA:

School: 1.3 miles
Gym: 2.1 miles
Grocery/Shopping Center: 2.7 miles
Police Station: 2.7 miles
Hospital: 5.1 miles
Public Transportation: 6.2 miles

Map