Spacious Home with Community Amenities and Ample Potential

USD $600,000
701 Winery, Wilmington, North Carolina, 28411, USA

Property Highlights

  • Hardwood floors in main living areas
  • Kitchen with double oven and pantry
  • Great room with gas fireplace and vaulted ceiling
  • Primary suite with dual walk-in closets and soaking tub
  • 3-car garage for ample parking
  • Fenced yard ideal for kids and pets

Overview

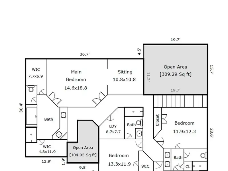
HOME NEEDS REPAIRS, IS PRICED ACCORDINGLY & ready for your vision! This spacious 3473 sf, 4-5 bedroom, 4.5 bath home offers incredible potential with hardwood floors throughout the foyer, living and dining rooms, great room & kitchen. 1st floor room with French doors & full bath could work well as an office or 5th bedroom. The kitchen features stainless steel appliances, double oven, pantry, center island, backsplash, and abundant storage, opening to the great room with a gas fireplace and vaulted ceiling. Upstairs, you'll find 4 bedrooms and 3 full baths, including a generous primary suite with dual walk-in closets, double vanity, soaking tub, separate shower, and a bonus area ideal for an office, nursery or exercise area. Ample storage throughout plus a 3-car garage. Fenced yard where kids & pets can safely play. Vineyard Plantation residents enjoy a community pool, clubhouse, and low HOA dues. Being sold as-isseller will make no repairs. Home inspection report available. An excellent opportunity to create your dream home!
Show More Show Less

Property Features

701 Winery, Wilmington, North Carolina, 28411, USA offers the following features:

Bedrooms: 5
Bathrooms: 4 Full | 1 Half
Living Area: 3473sf
Property Type: Residential
Status: Active
Reference ID: 100526885

What's Nearby

Local businesses near 701 Winery, Wilmington, North Carolina, 28411, USA:

School: < 1 mile
Hospital: < 1 mile
Gym: 1.1 miles
Grocery/Shopping Center: 1.6 miles
Police Station: 5.2 miles
Public Transportation: 6.2 miles

Map