Modernized Residential and Commercial Building in Prime Location

EUR €1,025,000 (USD $1,194,026) *current conversion
Wilhelmshaven, Germany

Property Highlights

  • Central location on Bismarckplatz
  • Mixed residential and commercial use
  • Modernized kitchens and bathrooms
  • Double-glazed tilt and turn windows
  • Full basement with tenant storage rooms
  • Close to bus station and amenities

Overview

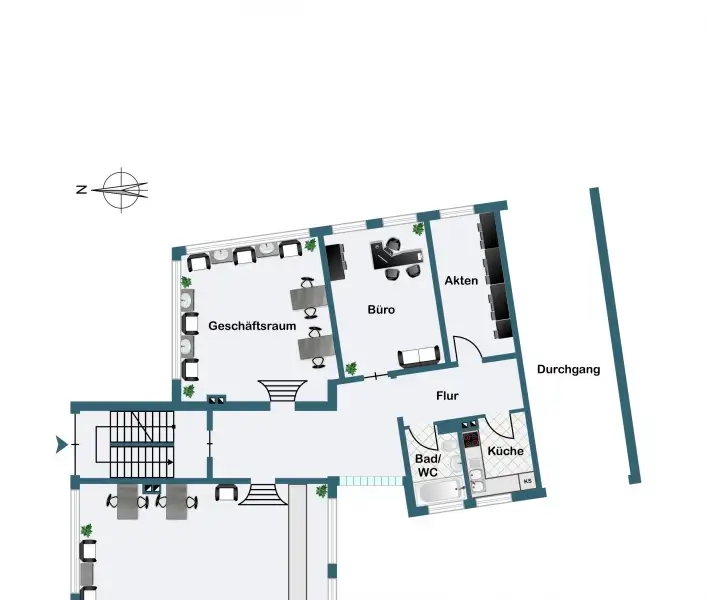
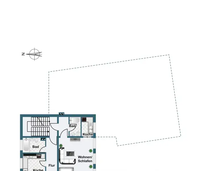
This modernized residential and commercial building from 1960 presents itself as a high-yield property in an extremely central location directly on Bismarckplatz. The property comprises a generous living and usable area of around 987 m², divided into twelve residential units and two commercial units. The plot extends over around 424 m² and is therefore ideal for use. The architectural design of the building allows the units to be used in a variety of ways. The apartment sizes vary between approx. 29.5 m² and 99.57 m² and therefore appeal to a wide range of tenants - from individuals to families. The available space is divided into four one-bedroom apartments, one two-bedroom apartment, four three-bedroom apartments (three of which have two balconies each) and three four-bedroom apartments, each of which has a spacious south-facing balcony. This residential offer is complemented by two attractive commercial units with a total area of approx. 138m², which can be flexibly adapted to changing business needs. The central location ensures that the commercial space can be let on a long-term basis. The building's furnishings are functional and contemporary. Several extensive modernization measures have been carried out since 2015. These include the renovation of several bathrooms, kitchens and floor coverings as well as a comprehensive roof refurbishment. All windows are double-glazed and fitted with modern tilt and turn fittings. The central oil heating system from 2003 continues to effectively provide pleasant warmth throughout the building. Another advantage is that the building has a full basement: Separate storage rooms are available to all tenants, providing additional practical usable space. The rental agreements for the residential units include an annual adjustment of 3%. The excellent infrastructure should be emphasized: the bus station is only 20 meters away, which ensures optimal accessibility for both residents and businesses. The city center location on Bismarckplatz offers numerous shopping, educational and leisure facilities in the immediate vicinity. This property is aimed in particular at investors who are looking for a yield-oriented property with development potential. The combination of versatile apartment sizes, good tenant structure, efficient room layout, central location and sustainable rental development makes this residential and commercial building a worthwhile option. If you are further interested, we would be happy to arrange a viewing appointment on site - please contact us for more information.
Show More Show Less

Property Features

Wilhelmshaven, Germany offers the following features:

Bedrooms: 12
Bathrooms: 14 Full
Living Area: 9142.54sf
Property Type: Manufactured In Park
Status: Active
Reference ID: 25203042

Map