Well-maintained Home in Desirable Daniels Farm District

USD $865,000
193 Putting Green Road, Trumbull, Connecticut, 06611, USA

Property Highlights

  • Prime Daniels Farm School district location
  • Formal living room with fireplace
  • Oversized kitchen with large island
  • Expansive sunroom with deck access
  • Park-like backyard with play space
  • Attached garage with mudroom storage

Overview

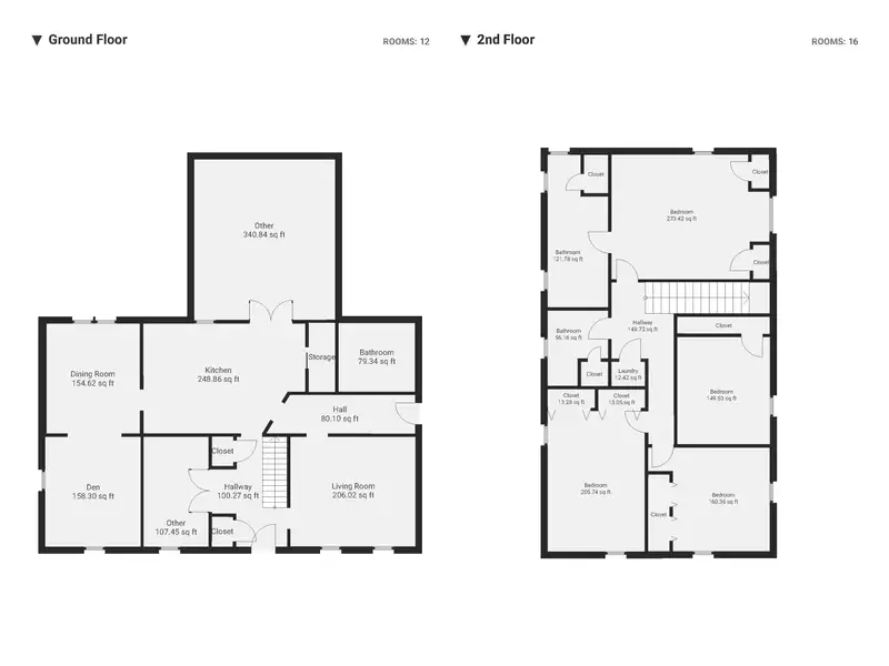
Welcome to 193 Putting Green Road! This is an extremely well maintained family home in one of Trumbull's prime locations in the highly sought after Daniels Farm School district. Perfect for family living with four large bedrooms and ample living space for all. The main level has a formal living room with fireplace for quiet get away. The oversized kitchen is a chef's haven with ample workspace and a huge island for gatherings, also offering an eat-in area and a large walk in pantry. The kitchen has glass doors out to the expansive sun room which flows to the deck overlooking the Park-like backyard with plenty of room for play. The garage is attached for easy entry through the mud room with entryway bench and storage to offload school bags, coats, etc. before entering the kitchen! The dining room and family room are attached and the first floor is complete with a newly refinished full bath and an office for days to work from home. The upper level houses the four oversized bedrooms, all
Show More Show Less

Property Features

193 Putting Green Road, Trumbull, Connecticut, 06611, USA offers the following features:

Bedrooms: 4
Bathrooms: 3 Full
Living Area: 2926sf
Property Type: Residential
Status: Active
Reference ID: 24143145

Map