Historical Montross Mansion with Grand Ballroom and Courtyard

USD $725,000
118 North Walnut Street, Troy, Ohio, 45373, USA

Property Highlights

  • Nearly 9,000 sq ft historic mansion
  • Zoned residential and commercial use
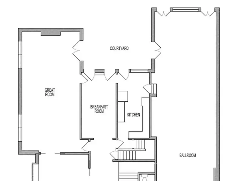
  • Grand ballroom with balcony and parquet floors
  • Private courtyard accessible from multiple rooms
  • Apartment above two-car carriage house
  • Elevator serving all four floors

Overview

Step into a piece of Troy's history at the Montross Mansion, a breathtaking architectural gem offering nearly 9,000 sq ft of timeless elegance. Located just two blocks from downtown, this one-of-a-kind property is zoned for both residential & commercial use, making it ideal as a private estate, business, event space, or creative venture. The grand ballroom captivates with parquet floors, arched windows, and a balcony, setting the stage for unforgettable gatherings. French-imported mirrors, intricate glass chandeliers, and custom murals showcase the mansion's storied past. A private courtyard, accessible from multiple first-floor rooms, offers a serene retreat or the perfect setting for entertaining. A separate 1 bed/1 bath apartment above the two-car carriage house provides flexibility for guests, caretakers, or additional income. Highlights include 5 bedrooms, 4 full & 3 half bathrooms, a grand library with a screened porch, 12 gas fireplaces, original Art Deco details, custom murals, an elevator to all 4 floors, a sunroom off the primary suite, a kitchenette on the 3rd floor, full walkout basement, office and recreation areas, granite countertops, two laundry rooms, and extensive storage. This landmark property blends historic character with modern versatility. Dozens of shopping, dining, and entertainment options are right outside your door. This property offers an unparalleled opportunity to own a truly distinctive residence or investment. Schedule your private tour today to experience its grandeur firsthand.
Show More Show Less

Property Features

118 North Walnut Street, Troy, Ohio, 45373, USA offers the following features:

Bedrooms: 5
Bathrooms: 4 Full | 3 Half
Living Area: 8926sf
Property Type: Residential
Status: Active
Reference ID: 1042105

What's Nearby

Local businesses near 118 North Walnut Street, Troy, Ohio, 45373, USA:

School: < 1 mile
Grocery/Shopping Center: < 1 mile
Gym: < 1 mile
Hospital: < 1 mile
Police Station: < 1 mile
Public Transportation: 7.7 miles

Map