Waterfront Blank Canvas with Pool and Expansive Views

USD $1,250,000
11750 5th Street East, Treasure Island, Florida, 33706, USA

Property Highlights

  • Waterfront on deep sailboat canal
  • Heated pool with spa and fire pit
  • Dock with 16,000 lb. lift
  • Updated roof, gutters, and A/C
  • Pebble tech pool and travertine flooring
  • Close to beach and dining options

Overview

Experience the rare chance to create your own luxury waterfront retreat on one of Treasure Island’s most desirable deep sailboat water canals, offering quick access to Boca Ciega Bay and the shimmering Gulf of Mexico. Set on an expansive 70x120 lot, this 2,716 sq. ft. residence is a blank canvas for your vision, a heated pool, bubbling spa, and fire pit set against wide water views. The home’s generous layout invites effortless entertaining, with multiple gathering areas off the kitchen that flow to the pool deck and dock. The kitchen space, complete with pantry, is ready to be transformed into your dream culinary showpiece, while the formal dining room showcases tranquil water vistas. In the center of the home, a spacious lanai serves as a versatile bonus space — perfect for morning coffee, afternoon yoga, or evening cocktails in a private, breezy setting. The large family room offers a relaxed spot for movie nights or casual get-togethers. The primary suite is ready to become a serene sanctuary, with room for a spa-inspired bath, dual walk-in closets, mini split for cool sleeping on hot summer nights and an adjacent flex room ideal for an office or expanded retreat. Two additional bedrooms are generously sized, each providing comfort, natural light, and flexibility for guests or family. Additional highlights include an inside laundry room, peace of mind of storm-rated doors and windows, 2024 roof and gutters, lush landscaping, seawall (2018), dock with 16,000 lb. lift and water/electric, 2025 A/C, 2024 water heater, 2024 pool equipment, pebble tech pool and travertine flooring in the main living areas. All just minutes to Treasure Island Beach, vibrant dining, boutique shopping, downtown St. Pete, Tampa, and both airports. Bring your imagination — the possibilities are as endless as the views.
Show More Show Less

Property Features

11750 5th Street East, Treasure Island, Florida, 33706, USA offers the following features:

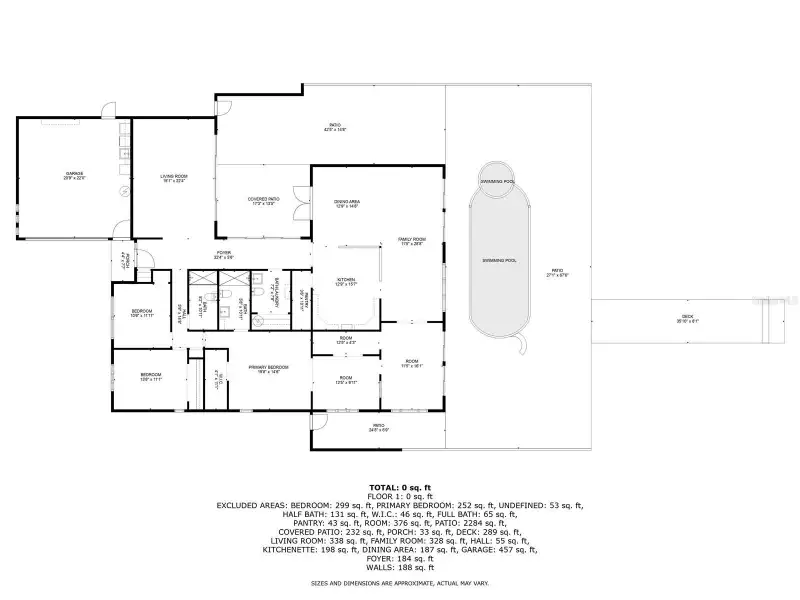
Bedrooms: 3
Bathrooms: 2 Full | 1 Half
Living Area: 2716sf
Property Type: Residential
Status: Active
Reference ID: TB8417831

What's Nearby

Local businesses near 11750 5th Street East, Treasure Island, Florida, 33706, USA:

Gym: < 1 mile
Public Transportation: < 1 mile
Police Station: < 1 mile
School: < 1 mile
Grocery/Shopping Center: < 1 mile
Hospital: 1.7 miles

Map