Exclusive Rural Land in Charming Sutton Village

Price Upon Request
2155 Sutton Road, Sutton, NSW, 2620, Australia

Property Highlights

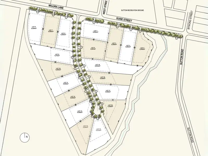
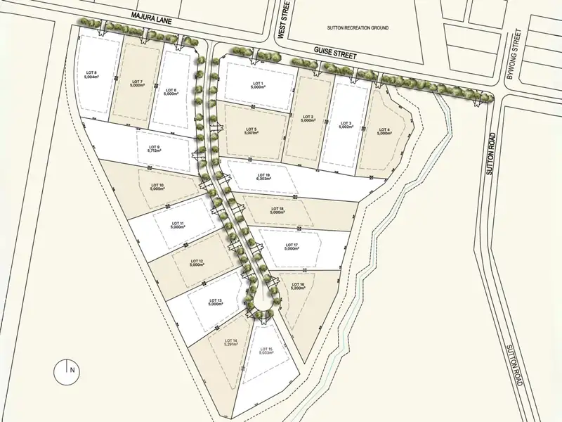
  • Generous 5,000m2 freehold lots
  • Fully fenced with electric gates
  • Close to Sutton village amenities
  • Easy 20-minute access to Canberra
  • Proximity to Sutton Pony Club
  • Build your dream rural home

Overview

Rural Charm. Modern Connectivity. 1853 Sutton is a boutique land release of only 19 lots, set within the heart of the exclusive and charming Sutton Village. Positioned within easy walking distance to the village, these freehold blocks provide generous, level, and unrestricted areas for building your dream rural home. Animals, both large and small, will love the open spaces with horse enthusiast enjoying the opportunity to walk across the road to the Sutton Pony Club or wander the countless trails surrounding the area. Sutton offers a character-filled village atmosphere, complete with a primary school, renowned bakery, post office and general store. And while you'll feel worlds away, you're just 20 minutes from Canberra CBD giving you the perfect balance of country charm with modern-day convenience. Expansive lifestyle blocks. Village connection. Rare opportunity. Rooted in a heritage dating back to 1853, this is Sutton's legacy reimagined, where locals have the chance to shape the next chapter. A place for those who know it best, to build something lasting. All lots come fully fenced, with the included addition of a customised electric gate and three post and rail natural timber fencing to the front of each lot. * Mid 2026 est. completion date * 19 total residences * Type: New land * 19 lots in the heart of Sutton * Generous 5,000m2 lots * Freehold land * Build your dream rural home * Buy now and settle in Q2 2026 * 20 minutes to Canberra For further details or to arrange a private appointment, please contact Scott Timbrell 0423 379 007 Ryan Broadhurst 0417 513 896 Whilst all care has been taken to ensure accuracy in the preparation of the particulars herein, no warranty can be given, and interested parties must rely on their own enquiries. This business is independently owned and operated by Belle Property Queanbeyan. ABN 57628148121 trading as Belle Property Queanbeyan.
Show More Show Less

Property Features

2155 Sutton Road, Sutton, NSW, 2620, Australia offers the following features:

Bathrooms: -
Property Type: rural
Status: Active
Reference ID: 222P591375

Map